Erik Bassen tie 10, Espoo
-
57 000 €
-
32m2
-
1h+kk
-
Kerrostalo
-
1971
Esittely
Mahdollisuus, jota ei kannata ohittaa
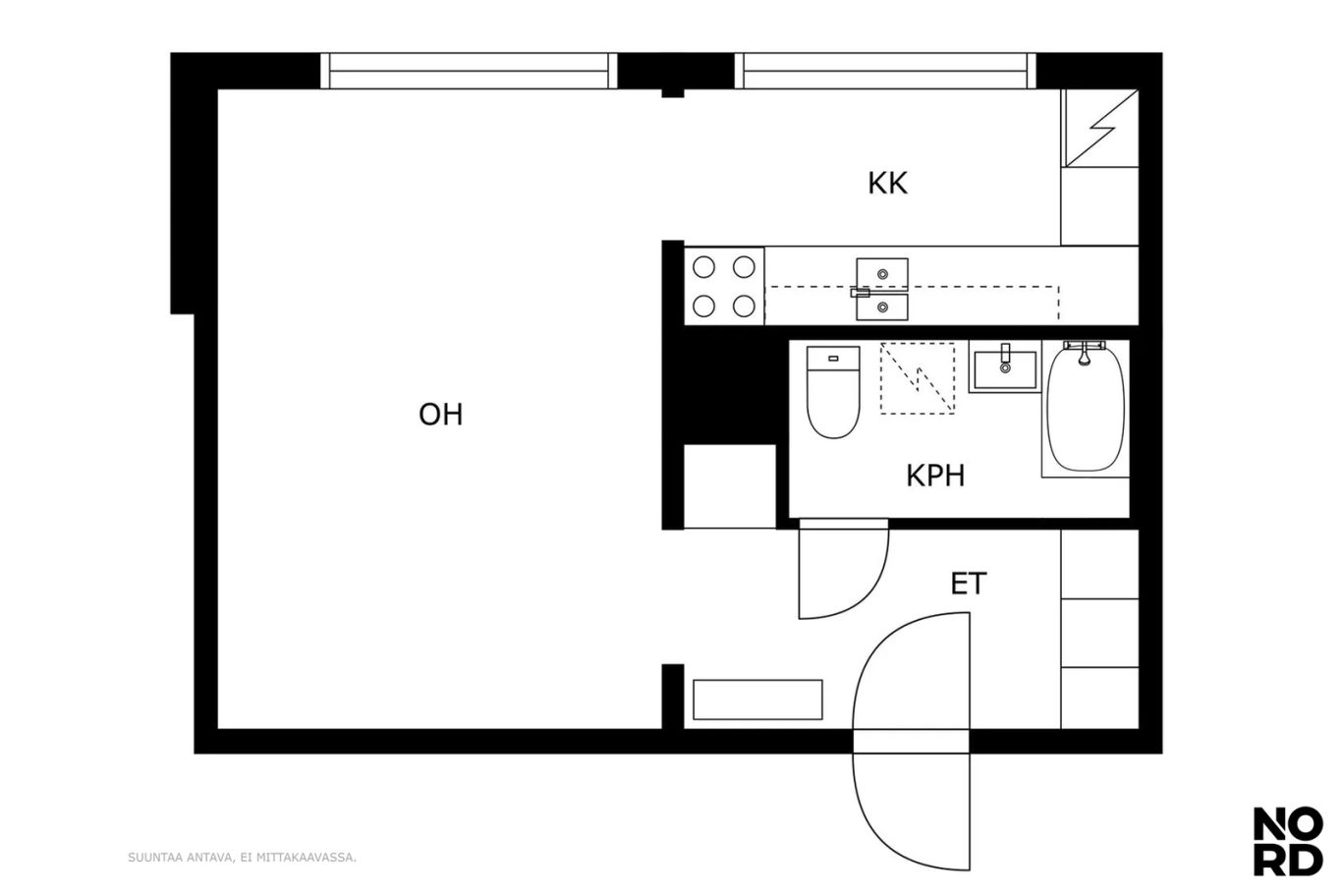
Tämä yksiö tarjoaa toimivan ja selkeän pohjaratkaisun, jossa neliöt on hyödynnetty tehokkaasti. Asunto on lähes alkuperäiskuntoinen, mikä antaa erinomaisen mahdollisuuden päivittää koti omien mieltymysten mukaiseksi ja toteuttaa ajaton, oman näköinen kokonaisuus. Suuret ikkunat tuovat tilaan hyvin luonnonvaloa ja lisäävät avaruuden tuntua, ja pohjaratkaisu mahdollistaa monipuoliset sisustusratkaisut.
Asunto Oy Kaukrinne on 56 huoneiston taloyhtiö, joka koostuu kahdesta nelikerroksisesta rakennuksesta. Lämmitysmuotona toimii kaukolämpö. Taloyhtiössä on toteutettu useita merkittäviä kunnossapito- ja perusparannustöitä vuosien varrella, ja kiinteistöstä on pidetty suunnitelmallisesti hyvää huolta.
Kauklahti on viihtyisä ja kehittyvä asuinalue, jossa palvelut, liikenneyhteydet ja luonto kohtaavat. Alueelta löytyvät päivittäispalvelut, koulut sekä sujuvat julkiset yhteydet juna-asema tarjoaa vaivattoman yhteyden Helsingin suuntaan. Läheiset ulkoilureitit, puistoalueet ja luontokohteet tarjoavat hyvät puitteet vapaa-ajalle ja aktiiviseen elämäntapaan.
Tervetuloa tutustumaan voisiko tämä koti sopia sinun suunnitelmiisi?
Lisätiedot ja esittelyt
Mika Leinonen | 0400 547 735 | mika@leinonenlkv.fi | www.leinonenlkv.fi
Harkitsetko oman asuntosi myyntiä? Pyydä minut maksuttomalle arviokäynnille sitoumuksetta. Kerron samalla lisää tämänhetkisestä asuntomarkkinatilanteesta, palveluistani ja meidän loistavasta välityskonseptista. Autan mielelläni!
Yhteystiedot ja esittelyt
| Yhteystiedot |
|
|---|
Asunnon perustiedot
| Kohdenumero | 20108386 |
|---|---|
| Sijainti |
|
| Tyyppi | Kerrostalo |
| Hallintamuoto | Asunto-osakeyhtiö |
| Omistusmuoto | Oma |
| Huoneistoselitelmä | 1h+kk |
| Asuinpinta-ala m² | 32 m² |
| Yhteensä m² | 32 m² |
| Pinta-alan peruste | Yhtiöjärjestyksen mukainen |
| Kerros | 3 |
| Kerroksia | 4 |
| Rakennusvuosi (päättynyt) | 1971 |
| Käyttöönottovuosi | 1971 |
| Vapautuminen | Heti |
Hinta ja kustannukset
| Velaton hinta | 57 000 € |
|---|---|
| Myyntihinta | 49 839,19 € |
| Velkaosuus | 7 160,81 € |
| Yhtiövastike | 274,94 € |
| Rahoitusvastike | 56,64 € |
| Hoitovastike | 218,30 € |
| Vesimaksu |
|
| Lisätietoja maksuista | - osakkaalla on halutessaan mahdollisuus varata saunavuoro hintaan 15,00 €/kk. - hallituksella on valtuudet periä enintään kahden kuukauden ylimääräiset vastikkeet tarvittaessa. |
Asunnon lisätiedot
| Tilojen kuvaus | Eteinen on selkeä ja käytännöllinen. Tilasta löytyy naulakko, vaatekaapistot sekä erillinen siivouskomero. Vaalea parkettilattia jatkuu yhtenäisenä muun asunnon kanssa, mikä luo viihtyisän ja yhtenäisen ilmeen. |
|---|---|
| Yleiskunto | Tyydyttävä |
| Energialuokka | D2018 |
| Lämmitysjärjestelmän kuvaus | Kauko |
Asunnon tilat ja materiaalit
| Asunnon tilat ja materiaalit |
|
|---|---|
| Katto |
|
| Keittiön kuvaus |
|
| Kylpyhuoneen kuvaus |
|
| Olohuoneen kuvaus |
|
Taloyhtiö
| Taloyhtiön nimi | Asunto Oy Kaukrinne |
|---|---|
| Isännöitsijän yhteystiedot | Kiinteistö-Tahkola | Isännöitsijä Marko Karimäki | 020 7480 295 |
| Taloyhtiössä muuta | Talopesula | sauna | askarteluhuone | väestönsuoja | kellarikomero | mankeli | urheiluvälinevarasto |
| Energialuokka | D2018 |
| (Taloyhtiön) Rakennukseen tehdyt korjaukset ja remontit | 2024 -Väestönsuojan tarkastus -autojen latauspisteiden selvitystyö 2023 -A, B, C ja D-talojen saunaosaston saneeraus 2021 -grillikatoksen kunnostus -pysäköintipaikan 3 lämmitystolpan siirto -vesikaton IV-kanavien ja kattoluukkujen maalaus sekä muita maalauskorjauksia -pihan asfaltointia -IV-puhdistus ja säätö 2020 -sadevesiviemärien ja jätevesiviemärin sukitus -C-D-talon kellarikäytävän maalaus -jätekatoksen maalaus -vesipostien uusiminen 2019 -pyöräkellarien peruskorjaus 2018 -julkisivun saneeraus 2017 -patteriventtiilien uusiminen 2016 -sulkuventtiilien uusiminen ja öljykattilan, -säiliön ja -polttimon poisto 2015 -vesikattojen saneeraustyö 2014 -C-D-talon kylmävesipohjajohdon uusiminen 2013 -A-B talojen kylmävesipohjajohdon uusiminen 2011 -ilmastointisaneeraus 2010 -kuntoarvio 2007 -liittyminen kaukolämpöverkkoon, ala-aulojen laajennus ja ulkovalojen parannus 2004 -jätekatos 2003 -porrashuoneiden kattoikkunat ja antenniverkoston peruskorjaus 2000 -pesutilojen kunnostus 1997 -ikkunoiden uusiminen 1996 -kuntokartoitus -lämmityslaitteiden uusiminen |
| Tiedossa olevat tulevat korjaukset/remontit | 2025 -Palovaroittimien uusimien huoneistoihin (päätetty) -LVIS-tekniikan esiselvitys -A-B talon edustan maisemointi 2026-2028 -Putkiremontin suunnittelun aloitus 2029 -Linjasaneeraus |
| Tontin pinta-ala | 5570 m² |
| Tontin omistus | Vuokrattu |
| Tontin Vuokranantaja | Espoon kaupunki |
| Taloyhtiön (Tontin) Vuokrasopimus päättyy | 30.11.2029 |
Palvelut ja liikenneyhteydet
Kuvat
Mika Leinonen
Asuntomyyjä, KiAT- Myynnin parissa olen toiminut 29 vuotta.
- Kiinteistövälitystehtävissä olen ollut pääkaupunkiseudulla sekä Tampereella lähes 20 vuotta.
- Edellisessä työpaikassa minulla vierähti neljä vuotta. Matka oli antoisa, oma myynnilliset tavoitteen paranivat vuosivuodelta sekä lukuisat koulutukset tekivät minusta entistä vahvemman, olen yhä heille siitä kiitollinen (Bo LKV). Yleensä kehitys loppuu tyytyväisyyteen, siksi päätin jatkaa matkaani Nord LKV huippu tiimiin. Heidän tarjoaman ainutlaatuisen konseptin johdosta uskon pääseväni ihan uudelle tasolle itseni, että asiakkaitteni kanssa.