Hankainrinne 14, Kirkkonummi
-
539 000 €
-
174m2
-
5h+avokeittiö+ruokailutila+2x kph+s+khh+vaatehuone+suuri aurinkoterassi+autokatos ja varasto
-
Omakotitalo
-
2012
-
Su 01.02.2026
klo 16:00 - 16:40
Esittely
Moderni, kuntotarkastettu ja energiatehokas omakotitalo Kirkkonummen Sepänkannaksella!
Tämä vuonna 2012 valmistunut ja 2013 loppukatselmoitu omakotitalo tarjoaa upean yhdistelmän modernia asumismukavuutta, energiatehokkuutta ja toimivuutta. Sijainti rauhallisella Sepänkannaksen pientaloalueella, omalla 937 m² rinnetontilla, tekee tästä kodista täydellisen vaihtoehdon perheelle, joka arvostaa luonnonläheisyyttä ja laatua.
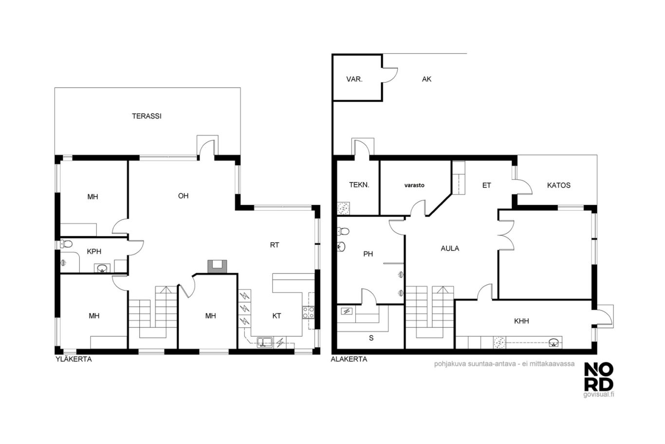
Koti on rakennettu kestävistä materiaaleista. Betonielementtikellari, puurunkoinen yläkerros ja tiilikatteinen harjakatto muodostavat vankan ja pitkäikäisen kokonaisuuden. Rakennuksen kokonaisala on noin 253 m², josta asuintilaa on noin 149/174 m².
Tilava ja valoisa koti kahdessa tasossa:
Kodin sydän on avara olohuone, jossa luonnonvalo tulvii sisään suurista ikkunoista ja tunnelmaa luo varaava takka. Olohuone yhdistyy saumattomasti tyylikkääseen avokeittiöön ja ruokailutilaan, josta on käynti suurelle, aurinkoiselle terassille täydellinen paikka kesäpäivien viettoon ja yhteisiin hetkiin perheen ja ystävien kanssa.
Keittiö on suunniteltu sekä estetiikka että käytännöllisyys mielessä. Tummasävyiset kalusteet, laadukkaat kodinkoneet ja saareke luovat harmonisen ja toimivan kokonaisuuden. Yläkerrasta löytyy myös kolme kivan kokoista makuuhuonetta ja kodin toinen kylpyhuone .
Alakerrasta löytyvät saunaosasto kahdella sadesuihkulla, kodinhoitohuone kurapisteineen, vaatehuone, tilava tyylikäs aula ja suuri makuuhuone, joka soveltuu erinomaisesti myös työtilaksi.
Energiatehokkuutta ja huolettomuutta arkeen:
Lämmityksestä huolehtii maalämpö vesikiertoisella lattialämmityksellä, joka takaa miellyttävän ja taloudellisen lämmön ympäri vuoden. Energialuokka A2018 kertoo kodin erinomaisesta energiatehokkuudesta. Lisäksi talossa on ilmalämpöpumppu viilennystä varten, koneellinen ilmanvaihto lämmön talteenotolla, Verisure-hälytysjärjestelmä sekä Elisan valokuituliittymä.
Koti on kuntotarkastettu vuonna 2025 (Sustera 02/2025), ja samana vuonna on tehty myös salaojien kuvaus, IV-kanavien nuohous ja maalämpöjärjestelmän huolto. Rakennus on pidetty erinomaisessa kunnossa, joten uudet omistajat voivat muuttaa sisään ilman remonttihuolia.
Piha ja ympäristö:
Vehreä metsään rajautuva rinnetontti on viimeistelty ja helppohoitoinen. Takapihalla on näyttävä patio sekä aurinkoinen laatoitettu aurinkoterassi, joka jatkaa kodin tiloja luontevasti ulos. Pihassa on ihastuttavia istutuksia, asfaltointi, autokatos ja lämmin varasto.
Sepänkannas on rauhallinen ja arvostettu asuinalue, jossa luonto, palvelut ja liikenneyhteydet ovat sopivassa tasapainossa. Kirkkonummen keskustaan ja kouluihin on lyhyt matka, ja Helsingin suuntaan pääsee nopeasti Länsiväylää tai junalla.
Yhteenvetona kodista:
Tämä vuonna 2025 kuntotarkastettu, maalämpöä hyödyntävä ja energiatehokas omakotitalo tarjoaa huolettoman ja laadukkaan asumisen vuosiksi eteenpäin. Talo on suunniteltu nykyaikaisen perheen tarpeisiin toimivat tilat, modernit ratkaisut ja lämmin tunnelma tekevät tästä kodista helposti rakastettavan.
Tule tutustumaan ja ihastu tämä koti on valmis toivottamaan uudet asukkaansa tervetulleiksi!
Osoite: Hankainrinne 14, 02480 Kirkkonummi
Kerros-ala: 174 m² (kokonaisala 253 m²)
Huoneet: 5h + avokeittiö + ruokailutila + 2x kph + s + khh + vaatehuone + terassi + autokatos + varasto
Tontti: oma, 937 m², rinnetontti
Lämmitys: maalämpö, vesikiertoinen lattialämmitys
Energialuokka: A2018
Rakennusvuosi: 2012, loppukatselmus 2013
Kuntotarkastus tehty: 2025
Yhteystiedot ja esittelyt
| Yhteystiedot |
|
|---|
Asunnon perustiedot
| Kohdenumero | 20767610 |
|---|---|
| Sijainti |
|
| Tyyppi | Omakotitalo |
| Huoneistoselitelmä | 5h+avokeittiö+ruokailutila+2x kph+s+khh+vaatehuone+suuri aurinkoterassi+autokatos ja varasto |
| Asuinpinta-ala m² | 174 m² |
| Yhteensä m² | 253 m² |
| Lisätietoja pinta-alasta | ASiakastieto Oy:n rakennustietojen mukaan: Asuintilojen pinta-ala 182 m² Kerrosala: 214 m² Kokonaisala: 270 m² Rakennuspiirrustusten mukaan pinta-alat: Huoneistoala: 149 m² Kerrosala yhteensä: 174 m² |
| Kerros | 1 |
| Kerroksia | 2 |
| Rakennusvuosi (päättynyt) | 2012 |
| Käyttöönottovuosi | 2012 |
| Vapautuminen | Heti |
Hinta ja kustannukset
| Velaton hinta | 539 000 € |
|---|---|
| Myyntihinta | 539 000 € |
| Kiinteistövero | 982,00 € |
| Lisätietoja maksuista | Vesi. ja jätevesikustannukset: Nykyisellä omistajalla noin 75 euroa/ kk, viisihenkinen perhe. Kokonaiskustannus vuodessa noin 900 euroa. Puhtaanapito: noin 8 euroa / kk. (tyhjennyskertojen mukaan). Hälytinjärjestelmä: Verisuren hälytinjärjestelmä on ollut 49,90 euroa / kuukausi. (sopimus uusittava, jos haluaa säilyttää hälytinjärjestelmän) Internet: Elisan 100M kuituliittymä on ollut 27,32 euroa/kk. Sähkönkulutus: Viisihenkisen perheen keskimääräinen sähkönkulutus vuodessa on ollut noin 14 000 - 15 000 kwh/vuosi. Kuukausittainen kustannus on ollut keskimäärin noin 166,97 euroa. Kulutus sisältää kahden lataushybridin latauksen, joka on arviolta noin 3000-4000 kwh/vuosi. |
Asunnon lisätiedot
| Sauna |
|
|---|---|
| Tulisija |
|
| Asuntoon kuuluu |
|
| Yleiskunto | Hyvä |
| Lisätietoa kunnosta | Rakennus on kuntotarkastettu myyntiä varten. |
| Tehdyt korjaukset | 2025 Salaojien kuvaus 2025 Energiatodistuksen päivitys 2025 Maalämpöjärjestelmän vuosihuolto 2025 IV-kanavien nuohous 2023-24 Terassilaudoituksen öljyäminen 2023 Takapihan kallioterassin laudoitus 2023 tehokompostorin hankinta 2023 Jyrsijäsuojaus 2021 Asennettu ilmalämpöpumppu 2021 Kattotiilien puhdistus, suojaus ja muutaman rikkinäisen tiilin vaihto 2018 Yläkerran wc:n peilikaappi uusittu 2017 Piha-asfaltoitu ja radonmittaus tehty 2015 ulkoverhous maalattu |
| Energialuokka | A2018 |
| Lämmitysjärjestelmän kuvaus | Maalämpö |
| Muut kaupan kannalta merkittävät tiedot | Myynnistä täysimääräisesti vastaa välitysliike: Kiinteistönvälitys Mika Grönlund Oy LKV y-tunnus: 3165163-1 virallinen käyntiosoite: Bulevardi 13, 00120 Helsinki Välitysliike toimii itsenäisenä välittäjä yrittäjänä yhteistyösopimuksella Nord LKV Oy:n kanssa. Nord LKV Oy ei vastaa toimeksiannon hoitamisesta. |
Asunnon tilat ja materiaalit
| Asunnon tilat ja materiaalit |
|
|---|---|
| Katto |
|
| Keittiön kuvaus |
|
| Kylpyhuoneen kuvaus |
|
| Saunan kuvaus |
|
| Kodinhoitohuoneen kuvaus |
|
| Olohuoneen kuvaus |
|
| Makuuhuoneiden kuvaus |
|
Taloyhtiö
| Kiinteistötunnus/laitostunnus | 257-477-1-126 |
|---|---|
| Kortteli/kiinteistön nimi | K4523T1 |
| Energialuokka | A2018 |
| Tontin pinta-ala | 0,0937 ha |
| Tontin omistus | Oma |
| Lisätietoja rakennusoikeudesta | Rakennusoikeutta jäljellä noin 20m². |
| Lisätietoa kaavoituksesta | Asemakaava (257-2937). Lisätiedot kaavoituksesta antaa Kirkkonummen kunta. Voit tutustua kirkkonummen kaavoitukseen osoitteessa: https://kirkkonummi.karttatiimi.fi/ |
Palvelut ja liikenneyhteydet
Kuvat
Mika Grönlund
Kiinteistönvälittäjä, LKV, LVV, PTM- Asiakaspalautteen keskiarvo 9,5/10, joista kaikki suosittelevat välittäjänä
- Välitystoimiston parhaan kolmen joukossa vuosittain. Vuonna 2020 paras
- Välittäjänä lähes 10 vuotta
- Yrittäjänä ja myyntialalla vuodesta 1999 lähtien
- Useita myyntialan koulutuksia, ammattimyyjätutkinto, auktorisoitu pientalomyyjä PTM, laillistettu kiinteistönvälittäjä LKV, LVV