Heinäsuontie 15, Helsinki
-
618 000 €
-
130m2
-
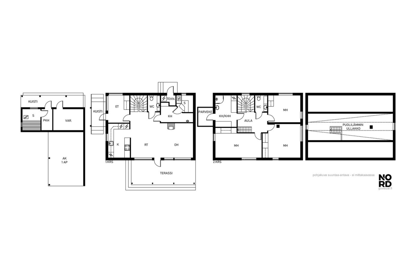
4h+k+2wc+khh/kph+s+ullakko+ulkovarasto+pihasauna (yj:n mukaan 4h+k+kph+sauna)
-
Erillistalo
-
2011
-
Su 01.02.2026
klo 12:00 - 12:40
Esittely
Tervetuloa tutustumaan harvinaiseen löytöön Helsingin Maununnevassa – viehättävään kaksitasoiseen erillistaloon, joka tarjoaa rauhaa, yksityisyyttä ja tilaa elää juuri omaa unelmaelämääsi.
Tontti on poikkeuksellisen suojaisa ja hiljainen, täydellinen paikka rentoutua kiireisen arjen keskellä. Autokatoksessa ja pihalla on erinomaisesti tilaa niin autoille kuin erilaisille harrastuksillekin.
Pihan helmi on erillinen saunarakennus, jossa odottaa perinteinen puulämmitteinen sauna. Sen lempeät löylyt tarjoavat ainutlaatuisen saunomiselämyksen, jota nykypäivänä omasta kodista löytää enää harvoin.
Itse talo on suunniteltu käytännöllisyyttä ja viihtyisyyttä ajatellen. Tilava, puolilämmin ullakko tuo runsaasti kaivattua säilytystilaa ja helpottaa arjen järjestelyjä. Kokonaisuus on harkittu ja lämminhenkinen – koti, joka tuntuu kodilta heti sisään astuessa.
Tällaisia kohteita tulee markkinoille harvoin. Tämä on tilaisuutesi tarttua ainutlaatuiseen ja viihtyisään kotiin Maununnevan rauhallisella alueella. Tästä on järkevä ajomatka joka puolelle pääkaupunkiseutua.
Taloyhtiöllä on oma tontti ja siihen kuuluu kaksi erillistä asuinrakennusta. Kumpikin vastaa omista kustannuksistaan sekä kunnossapito-, huolto-, ja korjaustoimista.
Varainsiirtovero vain 1,5%.
Eero Ahtola
Asuntomyyjä
040 553 9976
eero.ahtola@nordlkv.fi
IG: @eeronkodit
TikTok: @eeronkodit
Facebook: @eeronkodit
Haluatko arvion ja välityspalkkiotarjouksen nykyisestä kodistasi? Ota rohkeasti yhteyttä!
Yhteystiedot ja esittelyt
| Yhteystiedot |
|
|---|
Asunnon perustiedot
| Kohdenumero | 20856767 |
|---|---|
| Sijainti |
|
| Tyyppi | Erillistalo |
| Hallintamuoto | Asunto-osakeyhtiö |
| Omistusmuoto | Oma |
| Huoneistoselitelmä | 4h+k+2wc+khh/kph+s+ullakko+ulkovarasto+pihasauna (yj:n mukaan 4h+k+kph+sauna) |
| Asuinpinta-ala m² | 130 m² |
| Yhteensä m² | 146 m² |
| Pinta-alan peruste | Tarkistusmitattu |
| Lisätietoja pinta-alasta | Lisäksi asunnossa on 15,6m² puolilämmin ullakko, minkä neliöitä ei lasketa asuintilojen pinta-alaksi. |
| Kerros | 1 |
| Kerroksia | 2 |
| Rakennusvuosi (päättynyt) | 2011 |
| Käyttöönottovuosi | 2011 |
| Vapautuminen | Sopimuksen mukaan |
Hinta ja kustannukset
| Velaton hinta | 618 000 € |
|---|---|
| Myyntihinta | 618 000 € |
| Yhtiövastike | 250,00 € |
| Hoitovastike | 250,00 € |
| Vesimaksu |
|
| Lisätietoja maksuista | Sähkön kokonaiskulutus on ollut vuositasolla noin 15000 kWh (sis. lämmitys ja käyttösähkö). Vesimaksu kulutuksen mukaan. |
Asunnon lisätiedot
| Sauna |
|
|---|---|
| Tulisija |
|
| Tilojen kuvaus | 15,6m² puolilämmin ullakko. |
| Parveke | Asunnossa on parveke |
| Parvekkeen kuvaus |
|
| Yleiskunto | Hyvä |
| Energialuokka | A2007 |
| Lämmitysjärjestelmän kuvaus | Poistoilmalämpöpumppu, sähkö, muu |
Asunnon tilat ja materiaalit
| Asunnon tilat ja materiaalit |
|
|---|---|
| Katto |
|
| Keittiön kuvaus |
|
| Kylpyhuoneen kuvaus |
|
| WC-tilojen kuvaus |
|
| Saunan kuvaus |
|
| Kodinhoitohuoneen kuvaus |
|
| Olohuoneen kuvaus |
|
| Makuuhuoneiden kuvaus |
|
Taloyhtiö
| Taloyhtiön nimi | Asunto Oy Heinäsuontie 15 |
|---|---|
| Isännöitsijän yhteystiedot | Mika Ilvesmäki |
| Energialuokka | A2007 |
| (Taloyhtiön) Rakennukseen tehdyt korjaukset ja remontit | 2017 E-talon radon-mittaus, mittausraportissa ei mainittavaa 2019 IV-kanaviston nuohous ja desinfiointi, E-talo 2020 E-talon parvekkeen korjaus 2022 E-talon IV-koneen moottorin vaihto 2025 Savupiipun nuohous. Tehty vuosittain. |
| Tiedossa olevat tulevat korjaukset/remontit | 2026 Savupiipun nuohous |
| Tontin pinta-ala | 672 m² |
| Tontin omistus | Oma |
Palvelut ja liikenneyhteydet
| Palvelut | K-Market Maununneva 500m. Kauppakeskus Kaari 1,5km |
|---|
Kuvat
Eero Ahtola
Asuntomyyjä- Ostanut, remontoinut, myynyt, vuokrannut, välittänyt ja rakennuttanut asuntoja vuodesta 2019 alkaen.
- Perustaja ja yrittäjä asuntojen flippausta tekevässä yrityksessä 2022 alkaen.
- Tehnyt myyntityötä kansainvälisissä pörssiyhtiöissä 2011-2021.
- Asunut pitkään ulkomailla kolmessa eri maanosassa tehden projektipäällikön työtä 2008-2011.