Itätuulenkuja 10, Espoo
-
1 293 600 €
-
132m2
-
4h+kt+s+vh+khh+las.parveke
-
Kerrostalo
-
2024
-
La 10.01.2026
klo 11:30 - 12:15
Esittely
Vielä muutamia yksittäisiä asuntoja saatavilla.
Omalle tontille valmistunut uudiskohde Tapiolan Feenix Kultahöyhen edustaa asumisen uutta aikakautta. Keskeinen sijainti Tapiolan sykkivässä sydämessä sekä yhdistelmä tyyliä ja tasokkuutta tekevät kohteesta houkuttelevan sinulle, joka haluat nauttia yksilöllisestä elämänlaadusta.
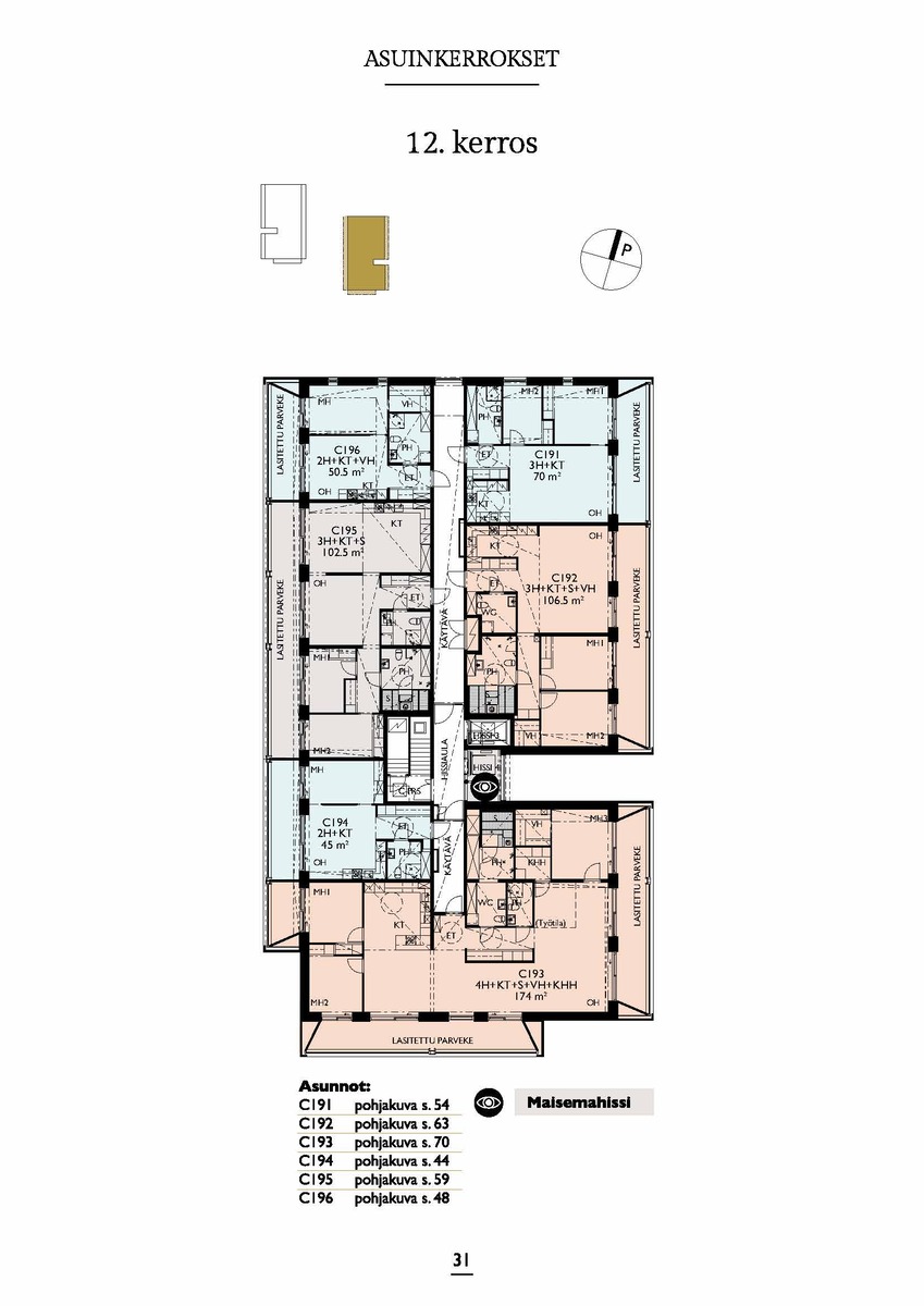
Kultahöyhen valttina ovat kerrassaan loistava sijainti sekä hienot näkymät. Kultahöyheneen on valmistunut yhteensä 86 asuntoa kahteentoista kerrokseen. Kaikissa asunnoissa on suuret lasitetut parvekkeet ja osassa jopa kaksi. Asuntoihin ja yhteistiloihin on esteetön hissi- ja sisäporrasyhteys. Kohde liitetään kaukokylmän verkkoon ja jokaisessa huoneistossa on viilennys.
Autopaikat tulevat sijaitsemaan kahteen kellarikerrokseen sijoittuvassa Feenix-Parkki pysäköintiyhtiössä. Autopaikat myydään omina osakkeinaan. Asuinhuoneiston käyttöön kuuluu oma irtaimistovarasto, lisäksi saatavilla on irtaimistovarastoja, jotka myydään omina osakkeina.
Asukkaiden käytössä on pihakannen oleskelupiha ja 6 krs kattopiha sekä talosauna ja -pesula, yhteistila, ulkoilu-ja lastenvaunuvarasto.
Ylellisyyttä on myös se, että arkiset toimet sujuvat helposti ja vaivattomasti. Palvelut, ravintolat, ostosmahdollisuudet, kulttuuritarjonta ja ulkoilualueet löytyvät lähes ulko-ovelta. Metroasema on ihan pihan tuntumassa ja kauppakeskus Ainoa monipuolisine palveluineen on vieressä.
* Tontti sisältyy asunnon hintaan
* Viilennys valmiina kaikissa huoneistoissa (Kaikki huoneistot liitetään Fortumin kaukojäähdytysverkkoon)
* Kaksi piha-aluetta joista toinen sijaitsee Aurinkosiiven katolla ja upea sisäpiha vesialtaineen talojen välissä
* Kaksi hissiä joista toinen on maisemahissi
* Suuret lasitetut parvekkeet, jotka on verhoiltu puupaneelilla
* Suora hissiyhteys parkkihalliin (pysäköintiyhtiö). Metroonkin pääsee helposti ihan pihan tuntumasta
* Björn Weckströmin uniikkia taidetta sisääntuloaulassa ja sisäpihalla
TILAA MYYNNIN INFOPAKETTI!
Varaa yksityinen esittelyaikasi! Kaikkien asuntojen yksityisesittelyt joustavasti!
Sisäänkäynti esittelyyn Tuulikinsillan kautta. (Itätuulenkuja 10 C)
JARMO TAIPALE 040 829 7171, jarmo@nordlkv.fi
JUHANI MÄHÖNEN 050 388 8467, juhani@nordlkv.fi
Onko nykyinen asunto osana rahoitusta? Turvallinen ja joustava siirtyminen uuteen kotiin! Ilmainen arviointi ja myyntisuunnitelma vanhalle asunnolle!
Yhteystiedot ja esittelyt
| Yhteystiedot |
|
|---|
Asunnon perustiedot
| Kohdenumero | 20203838 |
|---|---|
| Sijainti |
|
| Tyyppi | Kerrostalo |
| Hallintamuoto | Asunto-osakeyhtiö |
| Omistusmuoto | Oma |
| Huoneistoselitelmä | 4h+kt+s+vh+khh+las.parveke |
| Asuinpinta-ala m² | 132 m² |
| Yhteensä m² | 132 m² |
| Pinta-alan peruste | Yhtiöjärjestyksen mukainen |
| Kerros | 5 |
| Kerroksia | 12 |
| Rakennusvuosi (päättynyt) | 2024 |
| Käyttöönottovuosi | 2024 |
| Vapautuminen | Heti |
Hinta ja kustannukset
| Velaton hinta | 1 293 600 € |
|---|---|
| Myyntihinta | 697 719 € |
| Velkaosuus | 595 881 € |
| Yhtiövastike | 4 488 € |
| Rahoitusvastike | 4 092 € |
| Hoitovastike | 396,00 € |
| Vesimaksu |
|
| Lisätietoja maksuista | Arviot vastikkeista ja käyttökorvauksista: Hoitovastike asuinhuoneistot 3,00€ / m² / kk Hoitovastike varastot 1,50€ / m² / kk (hoitovastike 3,00 x vastikekerroin 0,5) Vesimaksuennakko 20,00 € / henkilö / kk Tasauslaskutus huoneistokohtaisen mittauksen mukaan. Laajakaista- ja kaapeli-TV -vastike 0,15 € / huoneisto / kk Arvioitu pääomavastike, korko + lyhennys 31,00 € / m² / kk Lainan pääoma11/2025 n. 21594477,00 €. Laina-aika: rakentamisaika + 1,5 vuotta lyhennysvapaa + 20 vuotta. Korontarkistuksessa 11.11.2025 Euribor 12 kk / 2,216 % + 0,9 marginaali= 3,116 %. Arvioitu pääomavastike, korko + lyhennys alkaen 12/2025 31,00 € / m² / kk Viitekorko vaihtuu kerran vuodessa, korontarkistus 11.11. Pääomavastike voi nousta viitekoron tai korkomarginaalin noustessa Käyttökorvaukset 8.4.2024. Käyttökorvaukset voivat muuttua yhtiön hallituksen päätösten mukaisesti. Talopesula 2,00 € / 2 tuntia / kone, varaukset tehdään konekohtaisesti (pesukoneet ja kuivausrummut) Talosauna 5,00 € kerta, vuoron kesto 1 tunti. |
Asunnon lisätiedot
| Sauna |
|
|---|---|
| Parveke | Asunnossa on parveke |
| Parvekkeen kuvaus |
|
| Hissi | Taloyhtiössä on hissi |
| Asuntoon kuuluu |
|
| Yleiskunto | Uusi |
| Energialuokka | B2018 |
| Lämmitysjärjestelmän kuvaus | Kauko |
| Muut kaupan kannalta merkittävät tiedot | Kaksi hissiä, toinen maisemahissi. Piha-alueet: Kattopiha ja sisäpiha. Viilennys Rakennus liitetään Fortum Oyj:n kaukojäähdytysverkkoon. Kaikki huoneistoistot varustetaan viilennyksellä. Älylukitusjärjestelmä Kiinteistöön tulee älylukitusjärjestelmä, joka sisältää mm. seuraavat toiminnot: - kulunvalvonta - älykäs, avaimeton lukitus, järjestelmässä myös ns. vanhanmallinen lukitus - ovipuhelin toiminnot asukkaiden mobiililaitteiden avulla Automaattinen sammutuslaitteisto Ilmanvaihto Asuntojen ilmanvaihtojärjestelmä on huoneistokohtainen koneellinen lämmön talteenotolla varustettu tulo- / poistoilmanvaihtojärjestelmä. Autopaikat sijaitsevat kahteen kellarikerrokseen sijoittuvassa pysäköintiyhtiössä. Parkkihalliin on asunnoista jokaisesta porrashuoneesta suora esteetön hissi- ja sisäporrasyhteys. Autopaikat myydään erillisosakkeina, |
Asunnon tilat ja materiaalit
| Asunnon tilat ja materiaalit |
|
|---|---|
| Katto |
|
| Keittiön kuvaus |
|
| Kylpyhuoneen kuvaus |
|
| WC-tilojen kuvaus |
|
| Saunan kuvaus |
|
| Kodinhoitohuoneen kuvaus |
|
| Makuuhuoneiden kuvaus |
|
| Säilytystilojen kuvaus ja lisätiedot | Huoneistokomerot, osassa huoneistoja on lisäksi vaatehuoneet |
Taloyhtiö
| Taloyhtiön nimi | Asunto Oy Espoon Kultahöyhen |
|---|---|
| Taloyhtiössä muuta | Talopesula ja irtaimistovarastot sijaitsevat asunto-osakeyhtiön omissa tiloissa. K1 ja K2 kellarikerroksessa. Kultahöyhenen polkupyörävarastot sijaitsevat yhtiön hallinta-alueella kerroksessa K1. Autopaikkojen käyttöön oikeuttavia osakkeita myydään erikseen tontille rakennettavasta Kiinteistö Oy Feenix Parkki - nimisestä yhtiöstä. Asunto Oy Espoon Aurinkosiiven katolla sijaitseva 6 krs. kattopiha. Asuinrakennusten välissä sijaitseva yhteispiha. Asunto Oy Espoon Tulilinnun rakennuksessa sijaitseva yhteistila. Myytäviä lisäirtaimistovarastoja. |
| Energialuokka | B2018 |
| Tontin omistus | Oma |
Palvelut ja liikenneyhteydet
| Palvelut | Ainoa kauppakeskus kattavine palveluineen |
|---|---|
| Liikenneyhteydet | Metro ja bussit vieressä. |
| Päiväkoti | Alueella |
| Koulut | Alueella |
Kuvat
Jarmo Taipale
Kiinteistönvälittäjä LKV, KED, RAKI