Itätuulenkuja 10, Espoo
-
977 600 €
-
104m2
-
3h + kt + s + vh + parveke n. 25 m2
-
Kerrostalo
-
2024
-
Su 26.10.2025
klo 13:30 - 14:15
Esittely
Asunto Oy Espoon Kultahöyhen on muuttovalmis!
Varaa yksityinen esittelyaikasi! Kaikkien asuntojen yksityisesittelyt joustavasti!
Omalle tontille valmistunut uudiskohde Tapiolan Feenix Kultahöyhen edustaa asumisen uutta aikakautta. Keskeinen sijainti Tapiolan sykkivässä sydämessä sekä yhdistelmä tyyliä ja tasokkuutta tekevät kohteesta houkuttelevan sinulle, joka haluat nauttia yksilöllisestä elämänlaadusta.
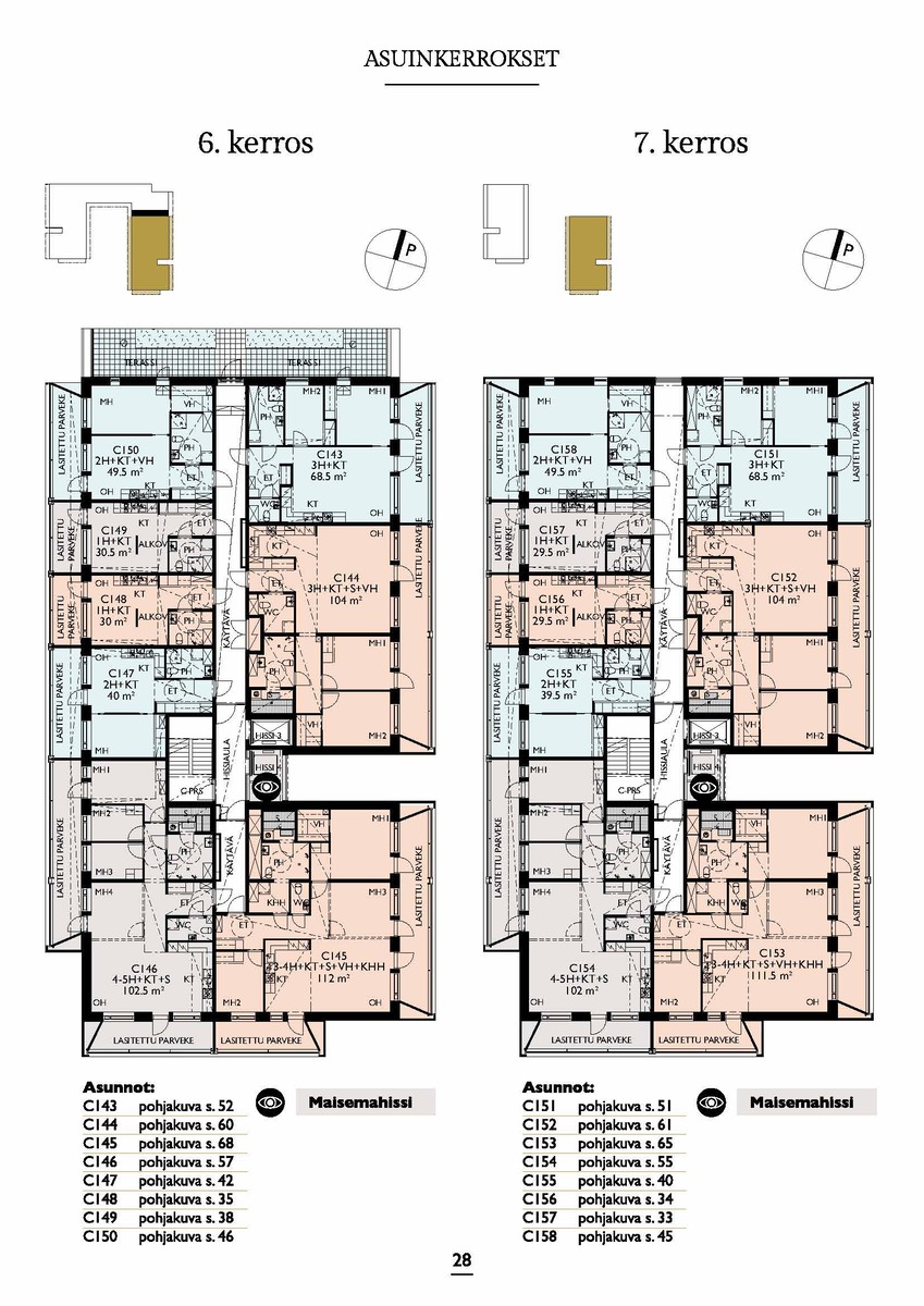
Kultahöyhen valttina ovat kerrassaan loistava sijainti sekä hienot näkymät. Kultahöyheneen on valmistunut yhteensä 86 asuntoa kahteentoista kerrokseen. Kaikissa asunnoissa on suuret lasitetut parvekkeet ja osassa jopa kaksi. Asuntoihin ja yhteistiloihin on esteetön hissi- ja sisäporrasyhteys. Kohde liitetään kaukokylmän verkkoon ja jokaisessa huoneistossa on viilennys.
Asuntoja on kaikissa kokoluokissa yksiöistä viiden huoneen perheasuntoihin. Autopaikat tulevat sijaitsemaan kahteen kellarikerrokseen sijoittuvassa Feenix-Parkki pysäköintiyhtiössä. Autopaikat myydään omina osakkeinaan. Asuinhuoneiston käyttöön kuuluu oma irtaimistovarasto, lisäksi saatavilla on irtaimistovarastoja, jotka myydään omina osakkeina.
Asukkaiden käytössä on pihakannen oleskelupiha ja 6 krs kattopiha sekä talosauna ja -pesula, yhteistila, ulkoilu-ja lastenvaunuvarasto.
Ylellisyyttä on myös se, että arkiset toimet sujuvat helposti ja vaivattomasti. Palvelut, ravintolat, ostosmahdollisuudet, kulttuuritarjonta ja ulkoilualueet löytyvät lähes ulko-ovelta. Metroasema on ihan pihan tuntumassa ja kauppakeskus Ainoa monipuolisine palveluineen on vieressä.
* Tontti sisältyy asunnon hintaan
* Viilennys valmiina kaikissa huoneistoissa (Kaikki huoneistot liitetään Fortumin kaukojäähdytysverkkoon)
* Kaksi piha-aluetta joista toinen sijaitsee Aurinkosiiven katolla ja upea sisäpiha vesialtaineen talojen välissä
* Kaksi hissiä joista toinen on maisemahissi
* Suuret lasitetut parvekkeet, jotka on verhoiltu puupaneelilla
* Suora hissiyhteys parkkihalliin (pysäköintiyhtiö). Metroonkin pääsee helposti ihan pihan tuntumasta
* Björn Weckströmin uniikkia taidetta sisääntuloaulassa ja sisäpihalla
TILAA MYYNNIN INFOPAKETTI! KAUTTAMME KAIKKIEN FEENIX ASUNTOJEN VARAUKSET, ASUNTOJEN YKSITYIS ESITTELYT JA MYYNTI:
JUHANI MÄHÖNEN 050 388 8467, juhani@nordlkv.fi
JARMO TAIPALE 040 829 7171, jarmo@nordlkv.fi
Onko nykyinen asunto osana rahoitusta? Turvallinen ja joustava siirtyminen uuteen kotiin! Ilmainen arviointi ja myyntisuunnitelma vanhalle asunnolle!
Yhteystiedot ja esittelyt
| Yhteystiedot |
|
|---|
Asunnon perustiedot
| Kohdenumero | 20462048 |
|---|---|
| Sijainti |
|
| Tyyppi | Kerrostalo |
| Hallintamuoto | Asunto-osakeyhtiö |
| Omistusmuoto | Oma |
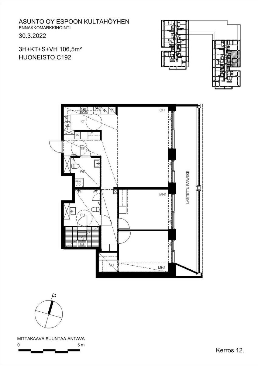
| Huoneistoselitelmä | 3h + kt + s + vh + parveke n. 25 m² |
| Asuinpinta-ala m² | 104 m² |
| Yhteensä m² | 104 m² |
| Pinta-alan peruste | Yhtiöjärjestyksen mukainen |
| Kerros | 9 |
| Kerroksia | 12 |
| Rakennusvuosi (päättynyt) | 2024 |
| Käyttöönottovuosi | 2024 |
| Vapautuu | 01.04.2024 |
Hinta ja kustannukset
| Velaton hinta | 977 600 € |
|---|---|
| Myyntihinta | 488 800 € |
| Velkaosuus | 488 800 € |
| Yhtiövastike | 3 744 € |
| Rahoitusvastike | 3 432 € |
| Hoitovastike | 312,00 € |
| Vesimaksu |
|
| Lisätietoja maksuista | Vesimaksuennakko 25€/kk/henkilö, tasaus vuosittain. |
Asunnon lisätiedot
| Sauna |
|
|---|---|
| Parveke | Asunnossa on parveke |
| Parvekkeen kuvaus |
|
| Hissi | Taloyhtiössä on hissi |
| Yleiskunto | Uusi |
| Energialuokka | B2018 |
| Lämmitysjärjestelmän kuvaus | Kauko |
Asunnon tilat ja materiaalit
| Asunnon tilat ja materiaalit |
|
|---|---|
| Katto |
|
| Saunan kuvaus |
|
Taloyhtiö
| Taloyhtiön nimi | Asunto Oy Espoon Kultahöyhen |
|---|---|
| Taloyhtiöön kuuluu |
|
| Energialuokka | B2018 |
| Tontin omistus | Oma |
Palvelut ja liikenneyhteydet
Kuvat
Juhani Mähönen
Kiinteistönvälittäjä, LKV, LVV- Olen tullut alalle vuonna 2011
- Huoneistokeskuksen ja Kiinteistömaailman kautta tieni vei Huom Ketjuun Helsinkiin jossa olen toiminut yrittäjänä vuosina 2012 – 2020
- Kahdeksan viimeisen vuoden aikana olen välittänyt yli 500 asuntoa eli keskimäärin yli asunto / viikko tahtia
- 2020 paluu Etelä-Helsinkiin ja Bulevardille Nord LKV:hen
- Laillistettu kiinteistönvälittäjä (LKV, LVV)
- 2021 oli ensimäinen vuoteni Nord LKV:ssä jonka tuloksena oli 84 tehtyä asuntokauppaa