Kirvuntie 18, Espoo
-
549 900 €
-
88m2
-
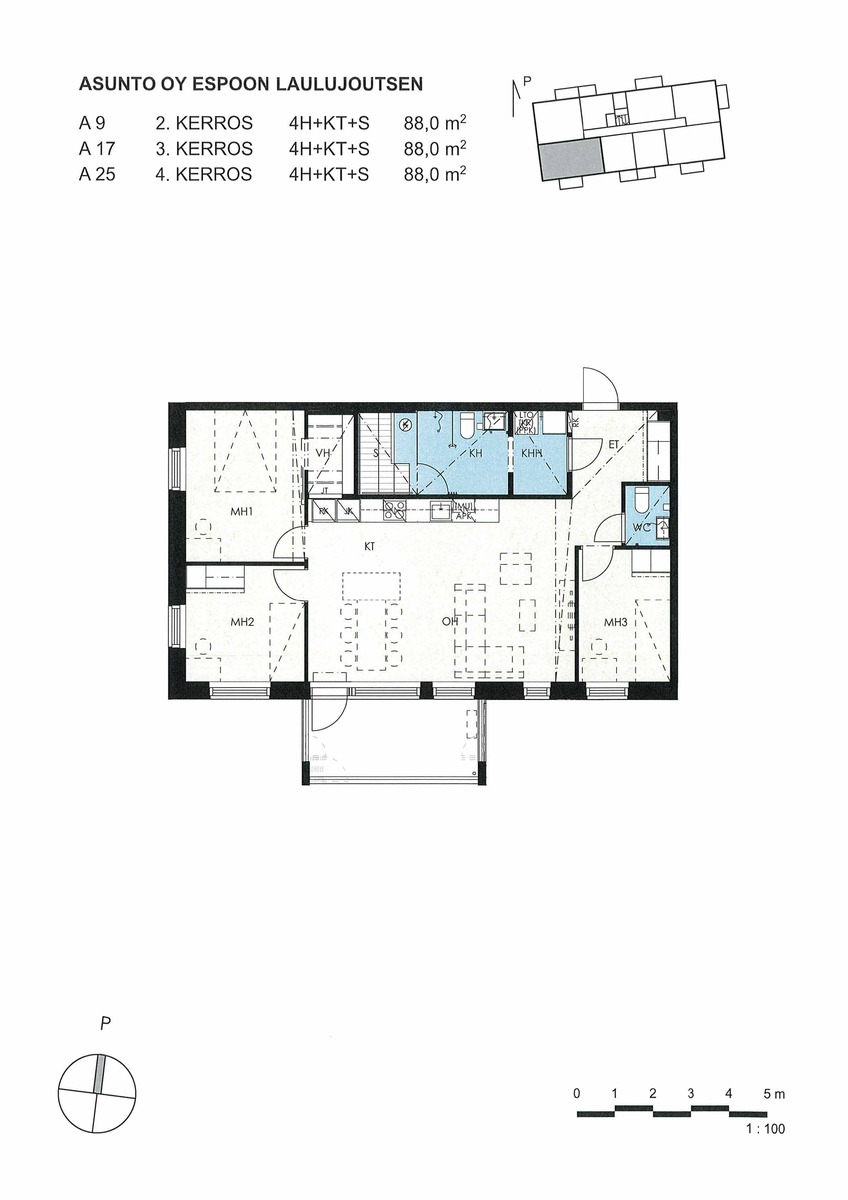
4H+KT+S+VH+ERILLINEN WC
-
Kerrostalo
-
2027
-
Ke 15.10.2025
klo 17:00 - 17:30
Esittely
Tämä laadukas hissitalo tulee olemaan omatonttinen kohde hyvien palveluiden ja kulkuyhteyksien lähellä Laajalahden arvostetulla ja vehreällä asuinalueella. Kohteen arvioitu valmistuminen on keväällä 2027. Tarjolle tulee valoisia kaksioita, kodikkaita kolmioita ja viihtyisiä neliöitä pinta-alaltaan 37,5 – 88 m2, lisävarastotiloja sekä autopaikkoja.
Velattomat myyntihinnat alkaen 235 000 €.
Kohde on RS-kohde, joka tekee ostamisesta turvallista ja maksuaikataulusta ennakoitavan.
– Laadukas uudiskohde
– Hissitalo
– Omatonttinen kohde
– A-energialuokka
– Pohjaratkaisujen mittasuhteet huolellisesti suunniteltu
– Useita pohjaratkaisuvaihtoehtoja
– Mahdollisuus ostaa lisävarastoja
– Nopea yhteys Tapiolaan ja Leppävaaraan
– Keskeinen sijainti Espoossa Helsingin rajan lähellä
– Luonnonsuojelualueet ja lintualueet kävelyetäisyydellä
– Meren läheisyys
– Raide- Jokerin pysäkki lähellä ja tiheät bussilinjat Kehä I:llä
– Suosittu asuinalue espoolaisten, helsinkiläisten ja muidenkin pääkaupunkilaisten keskuudessa
Uudiskohde Laulujoutsenesta alkaa Laajalahden uusiutuminen kestävää kehitystä ja perinteistä ihanaa Laajalahtea kunnioittaen.
Tervetuloa asioimaan kanssamme tästä tyylikkäästä uudiskohteesta! Mikäli oma asuntonne on vielä myymättä, saatte meiltä veloituksetta arvion sen myyntihinnasta ja -ajasta.
Leena Ollila
Kiinteistönvälittäjä, LKV, DI
leena@nordlkv.fi | 050 3838 767 | nordlkv.fi/leena-ollila/
Antti Larmala
Kiinteistönvälittäjä, LKV, LVV
antti@nordlkv.fi | 050 550 4107 | nordlkv.fi/antti-larmala/
Yhteystiedot ja esittelyt
| Yhteystiedot |
|
|---|
Asunnon perustiedot
| Kohdenumero | 21935558 |
|---|---|
| Sijainti |
|
| Tyyppi | Kerrostalo |
| Hallintamuoto | Asunto-osakeyhtiö |
| Omistusmuoto | Oma |
| Huoneistoselitelmä | 4H+KT+S+VH+ERILLINEN WC |
| Asuinpinta-ala m² | 88 m² |
| Yhteensä m² | 88 m² |
| Pinta-alan peruste | Yhtiöjärjestyksen mukainen |
| Kerros | 3 |
| Kerroksia | 4 |
| Rakennusvuosi (päättynyt) | 2027 |
| Käyttöönottovuosi | 2027 |
Hinta ja kustannukset
| Velaton hinta | 549 900 € |
|---|---|
| Myyntihinta | 219 960 € |
| Velkaosuus | 329 940 € |
| Yhtiövastike | 2 408,55 € |
| Rahoitusvastike | 1 950,95 € |
| Hoitovastike | 457,60 € |
| Vesimaksu |
|
Asunnon lisätiedot
| Sauna |
|
|---|---|
| Tilojen kuvaus | Lattia parkettia, seinät maalattu. |
| Parveke | Asunnossa on parveke |
| Parvekkeen kuvaus |
|
| Hissi | Taloyhtiössä on hissi |
| Yleiskunto | Uusi |
| Energialuokka | A2018 |
| Lämmitysjärjestelmän kuvaus | Aurinkolämpö, kauko, muu |
Asunnon tilat ja materiaalit
| Asunnon tilat ja materiaalit |
|
|---|---|
| Katto |
|
| Keittiön kuvaus |
|
| Kylpyhuoneen kuvaus |
|
| WC-tilojen kuvaus |
|
| Olohuoneen kuvaus |
|
| Makuuhuoneiden kuvaus |
|
| Säilytystilojen kuvaus ja lisätiedot | Talon 1. kerroksessa sijaitsevat asuntojen irtaimistovarastot sekä yhtiön väestönsuoja, tekniset tilat, kuivaushuone, kerhotila ja ulkoiluväline- ja lastenvaunuvarasto. Lisäksi 1. kerroksessa sijaitsevat 12 kappaletta omina osakkeina myytäviä erikokoisia varastoja. |
Taloyhtiö
| Taloyhtiön nimi | Asunto Oy Espoon Laajalahden Laulujoutsen |
|---|---|
| Isännöitsijän yhteystiedot | Isännöitsijäntoimisto valitaan hankkeen edetessä. |
| Taloyhtiöön kuuluu |
|
| Energialuokka | A2018 |
| Autokatospaikkoja | 7 |
| Tontin omistus | Oma |
Palvelut ja liikenneyhteydet
| Palvelut | Kävelyetäisyydellä ruokakauppa, ravintola, kirjasto ja golfkenttä sekä nopea yhteys Leppävaaran Selloon ja Tapiolan keskustaan, joissa monipuoliset kaupalliset ja kunnalliset palvelut. Urheilukenttä ja jalkapallokenttä lähellä. |
|---|---|
| Liikenneyhteydet | Raide-Jokerin pysäkki ja bussilinjat lähellä. Lyhyt ajoyhteys Kehä I:lle, Turun moottoritielle ja Helsinkiin. Erinomaiset pyörätieverkostot ja lenkkeilymaastot. |
| Päiväkoti | Alueella ja alueen läheisyydessä useita päiväkoteja. |
| Koulut | Alueella ja alueen läheisyydessä useita kouluja alakouluista yliopistoon. Laajalahden koulun mittava saneeraus ja laajennus on juuri valmistunut. |
Kuvat
Antti Larmala
Kiinteistönvälittäjä, LKV, LVV- Aloitin urani Huom:illa vuonna 2012 ja olin siellä aina vuoteen 2018 asti
- Tämän jälkeen siirryin Sp-Kotiin jossa myynnin ohessa vastasin uudistuotannon myynnistä ja kouluttamisesta
- Teen keskimäärin noin 65 kauppaa vuodessa
- Minulla on LKV-tutkinto