
Koppelokuja 3, Tuusula
Esittely
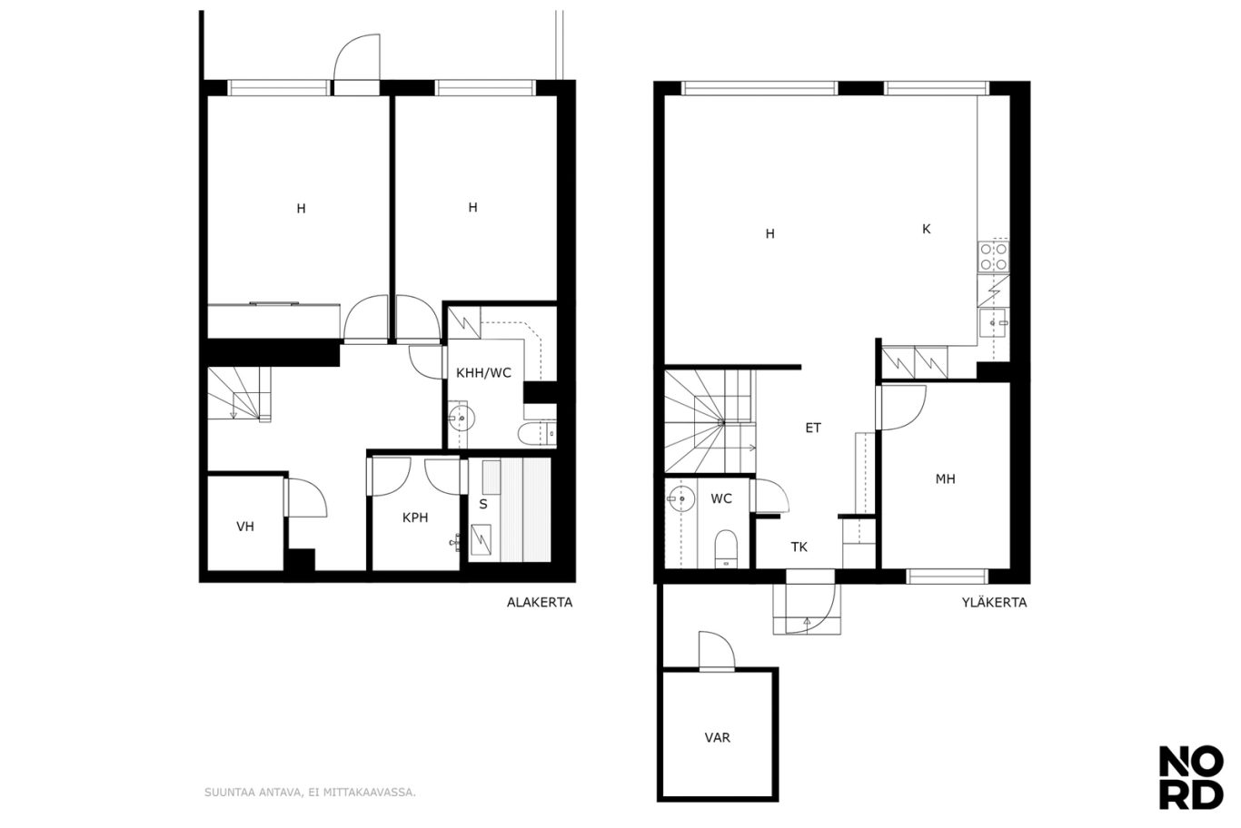
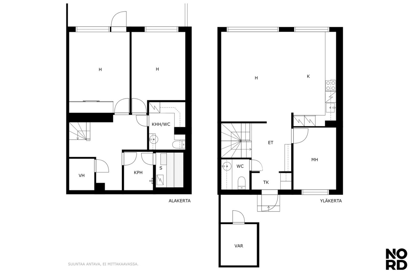
Tervetuloa tutustumaan tähän rivitalokotiin Tuusulan Riihikalliossa! Asunto sijaitsee rinteessä, mikä tuo yläkerran keittiöön ja olohuoneeseen avarat näkymät. Avoin pohjaratkaisu yläkerrassa tekee tilasta valoisan ja avaran, ja koko asunnon leveydeltä olevat ikkunat tuovat sisälle runsaasti luonnonvaloa.
Arjessa helpottavia ratkaisuja tarjoaa erillinen kodinhoitohuone, jossa on runsaasti säilytystilaa ja oma wc-istuin. Lisäksi asunnosta löytyy vaatehuone sekä kaapistot, jotka takaavat hyvät säilytysratkaisut. Alakerran makuuhuoneista toinen avautuu suoraan aidatulle terassipihalle. Yläkerran kolmas huone toimii joustavasti esimerkiksi työtilana, lastenhuoneena tai vierashuoneena.
Huoneistolla on terassialue sisääntulon yhteydessä sekä päämakuuhuoneesta on käynti aidatulle piha-alueelle, joka on tällä hetkellä katettu terassilaudoituksella kokonaisuudessaan.
Asuntoon kuuluu myös erillinen ulkovarasto sekä autokatospaikka, jossa on sähköauton latausvalmius. Riihikallio on viihtyisä ja kehittyvä alue, jossa päiväkoti ja koulu sijaitsevat aivan lähellä. Lähimpään ruokakauppaan on vain noin 600 metriä, ja Hyrylän keskustaan hurauttaa autolla noin viidessä minuutissa. Lenkkipolut lähtevät melkein kotiovelta, ja alueelta löytyy myös koirapuisto perheen lemmikeille.
Tämä koti tarjoaa mahdollisuuden remontoida ja viimeistellä tilat omien tarpeiden ja toiveiden mukaan. Tervetuloa katsomaan, olisiko tässä uusi kotisi!
Lisätiedot ja esittelyt:
Susanna Leinonen | 045 174 8144 | susanna@nordlkv.fi | www.leinonenlkv.fi
Harkitsetko oman asuntosi myyntiä? Pyydä minut maksuttomalle arviokäynnille sitoumuksetta. Kerron samalla lisää tämänhetkisestä asuntomarkkinatilanteesta, palveluistani ja meidän loistavasta välityskonseptista. Autan mielelläni!
Yhteystiedot ja esittelyt
Yhteystiedot |
|
---|
Asunnon perustiedot
Kohdenumero | 20279833 |
---|---|
Sijainti |
|
Tyyppi | Rivitalo |
Hallintamuoto | Asunto-osakeyhtiö |
Omistusmuoto | Oma |
Huoneistoselitelmä | 4h+k+s |
Asuinpinta-ala m² | 100.5 m² |
Yhteensä m² | 100.5 m² |
Pinta-alan peruste | Yhtiöjärjestyksen mukainen, isännöitsijäntodistuksen mukainen |
Kerros | 2 |
Kerroksia | 2 |
Rakennusvuosi (päättynyt) | 1980 |
Käyttöönottovuosi | 1980 |
Vapautuminen | Heti |
Hinta ja kustannukset
Velaton hinta | 208 000 € |
---|---|
Myyntihinta | 206 380,97 € |
Velkaosuus | 1 619,03 € |
Yhtiövastike | 493,46 € |
Rahoitusvastike | 61,31 € |
Hoitovastike | 432,15 € |
Vesimaksu |
|
Autopaikkamaksu | 10 € / kk |
Asunnon lisätiedot
Sauna |
|
---|---|
Asuntoon kuuluu |
|
Yleiskunto | Tyydyttävä |
Tehdyt korjaukset | Edellinen omistaja on tehnyt keittiöremontin huoneistossa. |
Energialuokka | D2018 |
Lämmitysjärjestelmän kuvaus | Kauko |
Asunnon tilat ja materiaalit
Asunnon tilat ja materiaalit |
|
---|---|
Katto |
|
Keittiön kuvaus |
|
Kylpyhuoneen kuvaus |
|
WC-tilojen kuvaus |
|
Saunan kuvaus |
|
Kodinhoitohuoneen kuvaus |
|
Olohuoneen kuvaus |
|
Makuuhuoneiden kuvaus |
|
Säilytystilojen kuvaus ja lisätiedot | Etupihan yhteydessä on kylmä varastokomero. |
Taloyhtiö
Taloyhtiön nimi | Asunto Oy Pellavakärki |
---|---|
Isännöitsijän yhteystiedot | TH-Isännöinti Oy, Asolantie 14, 01400 Vantaa www.th-isannointi.fi, puh. 010 440 6420 Isännöitsijä Jani Hellsten jani.hellten@th-isannointi.fi, puh. 050 331 7447 |
Taloyhtiössä muuta | Koneellinen poistoilmanvaihto |
Energialuokka | D2018 |
Autokatospaikkoja | 17 |
(Taloyhtiön) Rakennukseen tehdyt korjaukset ja remontit | SELVITYS TEHDYISTÄ MERKITTÄVISTÄ KUNNOSSAPITOTÖISTÄ 2023 Asunnon C 10 kosteusvaurion korjaus 2023 Piharasioiden uusiminen sähköautojen lataamiseen soveltuviksi 2023 Autokatosten ja jätehuoneen teräsrakenteiden huoltomaalaukset 2023 Ulkorakennusten puuseinien ja aitojen korjaus ja huoltomaalaukset (talkootyönä) 2023 Kuntoarviossa todetut välittömät toimenpiteet 2022 Kiinteistön kuntoarvio ja 10 vuoden PTS 2022 Etu-ovien uusiminen 2021 Päätykolmioiden kunnostus ja huoltomaalaus 2021 Elementtisaumojen uusiminen 2019 D15 Asunnon vesivahingon korjaus 2018 Salaojien uusiminen takapihoille 2018 Piha-aitojen uusiminen 2017 Takapihojen salaojien hankesuunnittelu 2017 Piha-aitojen ja katosten/terassien hankesuunnittelu 2016 Grillikatoksen rakentaminen 2015 Leikkipaikan peruskorjaus, leikkivälineet uusittu 2014 Varastojen osittainen huolto maalaus 2014 Sorastettiin rakennusten seinän vierustoja 2014 Puuttuvien tyristörisäätimien asennus ja yhtiön kunnossapitovastuulle siirto 2014 Postilaatikot uusittiin 2014 Pihaportaat C ja D- talojen välille 2014 Piha-aitojen osittainen kunnostus 2014 Naapuriyhtiön kanssa yhteinen raja-aita 2014 Kävelytiet kunnostettiin kivituhkalla 2014 Autokatosten ja pihan valaistus uusittiin 2013 Pihapuiden kaatoa ja kantojen jyrsintää 2013 Paahderinteen viimeistely 2012 Terassiovien vaihto 2012 Lukituksen uusiminen 2011 TV-antenniverkoston kunnostus 2011 Korvausilmaventtiilien asennus 2010-2011 Piha-alueiden kunnostus 2010 Poistoilmajärjestelmän puhdistus ja tasapainotus 2009 Lämpökeskuksen ja talojen väliset runkoputkistot uusinnat uusiin linjauksiin 2009 Lämmitysverkon tasapainotus ja huuhtelu 2009 Käyttövesiputkiston uusiminen ja huoneistokohtaisten vesimittareiden asennus. 2009 Kylpyhuoneisiin asennettiin lämminvesipatterit ja muut patteritermostaatit uusittiin. 2008 Kaukolämpöön liittyminen 2007 Vesipisteiden kosteusmittaukset 2007 D-talon sadevesi- ja salaojaputket uusittu 2004 Katon pinnoitus 2004 Auton lämmitystolppien sähkörasiat uusittu 2002 Lisäautokatos 2002 Elisa kaapeli-TV |
Tiedossa olevat tulevat korjaukset/remontit | Hallituksen kunnossapitotarveselvityksessä ehdotetut toimenpiteet seuraavien vuosien ajalle (2024-2028) 2024 IV kanavien puhdistus ja ilmamäärien säätö Sadevesijärjestelmän ja otsalautojen uusiminen Märkätilojen seuranta kosteusmittaus asunnoissa A3, C10 ja D14 Sadevesien ohjaaminen varastojen kulmalta Raja-aidan pesu ja maalaus 2025 Tontiivesijohtoliittymän uusiminen Pellavarinteen kanssa (naapuritaloyhtiö) Palovaroittimet 34 kpl LVK-verkoston virtaamien tarkastus ja tarpeen mukainen säätö Patterverkoston perussäädön tarkastus Yläpohjan lisälämmöneritäminen 100-150mm 2026 Sorapintaisten kulkualueiden kunnostaminen ja rajaaminen nurmialueista ikkunoiden pieni huoltotyö varastojen puuovien huoltomaalaus perusmuurien vierustoille sorastamisen jatkaminen ja viherkasvillisuuden poissa pitäminen |
Tontin pinta-ala | 6135 m² |
Tontin omistus | Oma |
Palvelut ja liikenneyhteydet
Kuvat





















Susanna Leinonen
Kiinteistönvälittäjä, LKV, LVV, Itsenäinen välittäjäyrittäjä