Koronakatu 5 A 4 , Espoo
-
279 000 €
-
76m2
-
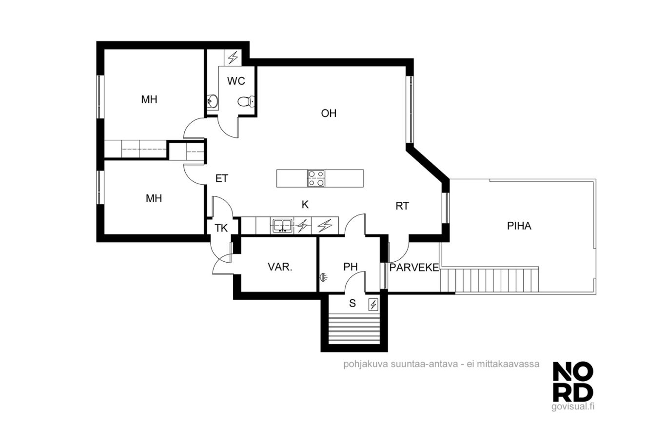
3h+k+erill.wc+kph+s+parveke+piha (3h+k+s yj:n mukaan)
-
Rivitalo
-
1984
Esittely
Tervetuloa tutustumaan Asunto Oy Birgitankodin valoisaan ja viihtyisään kotiin.
Tämän kodikkaan kolmion ehdoton valtti on toimiva ja avara pohjaratkaisu sekä oma suojaisa piha-alue. Avoin olohuone- keittiö ratkaisu luo kutsuvan tilan yhdessäololle niin ystävien kuin perheen kesken. Keittiössä on kauniina tilanjakajana suuri saareke jollaisesta moni voi vain haaveilla.
Asunnon isoista Ikkunoista on ilo seurata vuodenaikojen vaihtelua ja omalla pihalla voit nauttia kesäpäivistä muiden katseilta suojassa. Sijainti on keskeinen, mutta kuitenkin samalla yksityinen. Asunnossa on lisäksi kaksi makuuhuonetta, oma sauna, tilava kylpyhuone ja erillinen wc. Kaikki asunnon toiminnot sijaitsevat yhdessä tasossa.
Sijainti on loistava, Olarin Prisma ja Lidl sijaitsevat aivan lähellä ja Iso Omenan kauppakeskus kattavine palveluineen kävelyetäisyydellä. Hyvien bussi- ja metroyhteyksien lisäksi Länsiväylän ja kehä II:n läheisyys tekee omalla autolla kulkemisesta vaivatonta suuntaan, jos toiseen.
Myynti:
Tea Tiitu
LKV, LVV, KiAT
p. 040 7508008
tea@nordlkv.fi
Myynnistä vastaa täysimääräisesti välitysliike: Tea Tiitu LKV, y-tunnus: 2824582-7. Bulevardi 13, 00120 Helsinki. Välitysliike toimii itsenäisenä välittäjäyrittäjänä yhteistyösopimuksella Nord LKV Oy:n kanssa. Nord LKV Oy ei vastaa toimeksiannon hoitamisesta.
Tarvitsetko lainatarjouksen tai hinta-arvion omasta asunnostasi? Autan mielelläni!
Yhteystiedot ja esittelyt
| Yhteystiedot |
|
|---|
Asunnon perustiedot
| Kohdenumero | 21884734 |
|---|---|
| Sijainti |
|
| Tyyppi | Rivitalo |
| Hallintamuoto | Asunto-osakeyhtiö |
| Omistusmuoto | Oma |
| Huoneistoselitelmä | 3h+k+erill.wc+kph+s+parveke+piha (3h+k+s yj:n mukaan) |
| Asuinpinta-ala m² | 76 m² |
| Yhteensä m² | 76 m² |
| Pinta-alan peruste | Yhtiöjärjestyksen mukainen, isännöitsijäntodistuksen mukainen |
| Lisätietoja pinta-alasta | Yhtiön huoneistojen pinta-aloja ei ole tarkistusmitattu, tämän vuoksi pinta-alat saattavat poiketa olennaisestikin nykystandardien mukaan laskettavasta huoneistoalasta. Huoneiston todellinen asuinpinta-ala voi siten olla yhtiöjärjestyksessä ja esitteessä ilmoitettua suurempi tai pienempi. |
| Kerros | 2 |
| Kerroksia | 2 |
| Rakennusvuosi (päättynyt) | 1984 |
| Käyttöönottovuosi | 1984 |
| Vapautuminen | Kaksi kuukautta siitä,kun koko kauppahinta on maksettu |
Hinta ja kustannukset
| Velaton hinta | 279 000 € |
|---|---|
| Myyntihinta | 262 238,16 € |
| Velkaosuus | 16 761,84 € |
| Yhtiövastike | 731,12 € |
| Rahoitusvastike | 237,12 € |
| Hoitovastike | 418,00 € |
| Vesimaksu |
|
| Autopaikkamaksu | 27 € / kk |
| Lisätietoja maksuista | Hallitukselle on annettu valtuudet periä tai jättää perimättä enintään kahden kuukauden hoitovastiketta vastaava määrä. Hallitukselle annettiin valtuudet tarkistaa ja muuttaa osakkailta perittävien pääomavastikkeiden määriä, mikäli lainan korot sitä vaativat. Taloyhtiön osakeluettelo on siirretty huoneistotietojärjestelmään. Ostajan tulee hakea omistusoikeuden rekisteröintiä Maanmittauslaitokselta kaupan jälkeen. Ostaja vastaa omistusoikeuden rekisteröintikustannuksista, mahdollisista osakekirjan mitätöinnistä aiheutuvista kustannuksista sekä mahdollisesta hakemusmaksun korotuksesta. Ostajan pankin ostajalta mahdollisesti veloittamista kaupantekoon, omistusoikeuden rekisteröintiin tai panttausmerkinnän hakemiseen liittyvistä kustannuksista ostaja saa tiedon pankiltaan. Varainsiirtovero 1,5 %. |
Asunnon lisätiedot
| Sauna |
|
|---|---|
| Parveke | Asunnossa on parveke |
| Parvekkeen kuvaus |
|
| Asuntoon kuuluu |
|
| Yleiskunto | Tyydyttävä |
| Lisätietoa kunnosta | Kosteuskartoitus tehty 5.2.2025. Raportti saatavilla välittäjältä. Kartoitukseen kuuluneet tilat: Pesuhuone, sauna, wc ja keittiö. |
| Energialuokka | D2018 |
Asunnon tilat ja materiaalit
| Asunnon tilat ja materiaalit |
|
|---|---|
| Katto |
|
| Keittiön kuvaus |
|
| Kylpyhuoneen kuvaus |
|
| WC-tilojen kuvaus |
|
| Olohuoneen kuvaus |
|
| Makuuhuoneiden kuvaus |
|
Taloyhtiö
| Taloyhtiön nimi | Asunto Oy Birgitankoti |
|---|---|
| Isännöitsijän yhteystiedot | Isännöintitoimisto Ehta isännöinti asiakaspalvelu@ehtaisannointi.fi Isännöitsijä Annina Repo 020 750 5400 |
| Taloyhtiössä muuta | Ilmanvaihtojärjestelmä: Koneellinen poisto, Urheiluvälinevarasto, huoneistokohtaiset varastot. |
| Energialuokka | D2018 |
| (Taloyhtiön) Rakennukseen tehdyt korjaukset ja remontit | 2025: LV-kuntotutkimus, kuntoarvio. 2024: Radonmittaus otantana, huoneiston sisäilmaselvitys B17, kosteus-/lahovaurioiden selvitys (C 18) Ulkovesipostien osittainen uusiminen. 2023: Ikkuna-aukkojen kaatokorjaus- ja tiivistystyöt B-talo (ei pääty ikkunat) ja C-talo. 2022: Ikkuna-aukkojen kaatokorjaus- ja tiivistystyöt A- talo (ei A4, A7 ja A10), kosteusvauriokorjaus C 20, 2021-2022: Kosteusvaurio- ja sisäilmakorjaus C 21. 2021: Autohallioven uusiminen, kosteusvauriokorjaus A 8. 2020: Postilaatikkoseinän siistiminen, C 21 sisäilmakorjauksen toteutussuunnittelu. 2019: Kosteusvauriokorjaukset A 7, C 21sisäilmakorjauksen hankesuunnittelu. 2018: Kosteusvauriokorjaukset A 4, korvausilmaventtiilien asennus, vesikattojen, kattoikkunoiden, poistoilmapuhaltimien, valokatteiden ja tikkaiden uusiminen. 2017: A-talon roskahuoneen katon laudoitus. 2016: autohallin valaistuksen uusiminen, maakaapelin vaihto pihavalaistukselle, puutarhasuunnitelma, poistoilmanvaihtojärjestelmän puhdistus- ja tarkastus sekä ilmamäärien mittaus- ja säätötyön tasapainotus. 2015: portaisiin kaiteet Koronakadun puolelle A1-A3, sisääntulosivulle A1-A4, linja- sekä säätöventtiilien uusiminen, patteriverkoston tyhjennys ja patteriventtiilien ilmaus, sisämittaus huoneistoissa A5, B17 ja C21, A12 märkätilojen levytys ja vesieristys, salaojan kaivuut, louhintaa ja asennusta C21 päätyyn: 2014 A-talon sisääntulokatosten reunaliittymien valokatteiden tukirakenteiden korjaus, B-talon länsipäädyn sokkelipintojen maalaus, ylikasvaneita puita kaadettiin. 2013: jätehuonetta laajennettiin. 2012: C-itäpäädyn salaojatoteutus ja A-talon eteläpäädyn ja osin itäpäädyn (A10 ja A12 makuuhuoneet). 2011: pihateiden peruskunnostus ja C20 eteläsivun ikkunaseinän kosteusvauriokorjaus. 2010: A-talon pihojen puuportaiden uusiminen ja parveketasojen pinnoitus, ikkunoiden kittausten ja listojen uusiminen, A-B talojen lämpöputkikanavan uusiminen. 2009 :B-C-talojen välisen lämpöputkikanavan uusiminen. 2005-2011 ulkoseinien vesivuotojen korjauksia. 2008: lämmönvaihtimen uusiminen. 2007-2008: A-talon tiiliaidan uusiminen sekä kaikkien aitaporttien uusiminen, 2007 A-talon valokatteiden uusiminen, etelä-, itä ja länsi-ikkunoiden pellitys. 2006: etelä-, itä- ja länsi-ikkunoiden maalaus ja listojen uusiminen. 2005: ilmastoinnin puhdistus ja säätö sekä takkahormien nuohous. 2001: paikoitusalueen muurin toteutus ja asfaltointi, B-talon valokatteiden uusiminen. 2000: kylpyhuonesaneerauksia osakkaiden toimesta. 1996 A-talon sisääntulokatosten uusiminen, 1994 antenniverkon kunnostus, autohallin oven osittaisuuminen ja automatisointi, lukitusten uudelleensarjoitus, 1993 sepelikaista sokkeleiden viereen, 1989 pihakäytävien levennys ja pihavalaisimien asennus. |
| Tiedossa olevat tulevat korjaukset/remontit | Vuonna 2025 tehtävät kunnossatoimet -Huoneiston B 17 tiivistyskorjaustyöt -Lakisääteinen palohälyttimien siirto taloyhtiölle -Viemäreiden huuhtelu ja kuvaus -Linjasaneerauksen hankesuunnittelu -Märkätilojen kuntotarkastus -Leikkipaikan tarkastus Yhtiön merkittävät kunnossapitohankkeet vuosille 2026- 2029 -A-talon takapihan portaiden kunnostus -Piha-aitojen kunnostus -C-talon leikkipaikan tukimuurin korjaus/ uudelleenrakennus -Leikkialueen kunnostus -Autopaikkojen muuntaminen latauskäyttöön soveltuvaksi -Lämmitysjärjestelmän tasapainotus ja patteriventtiilien ja termostaattien vaihto. -Hulevedenohjauksen korjaustarpeen selvitys ja kunnostus ja ohjauksen parantaminen selvityksen perusteella. -Salaojajärjestelmän tarpeen selvitys -Betonirakenteiden kuntotutkimus -Lukitusjärjestelmän uusiminen -Parveke-, terassi- ja kylpyhuoneulko-ovien uusiminen -Valaisimien uusiminen |
| Tontin pinta-ala | 4141 m² |
| Tontin omistus | Oma |
Palvelut ja liikenneyhteydet
Kuvat
Tea Tiitu
Kiinteistönvälittäjä, LKV, LVV, KiAT