Mannerheimintie 67, Helsinki
-
367 000 €
-
59m2
-
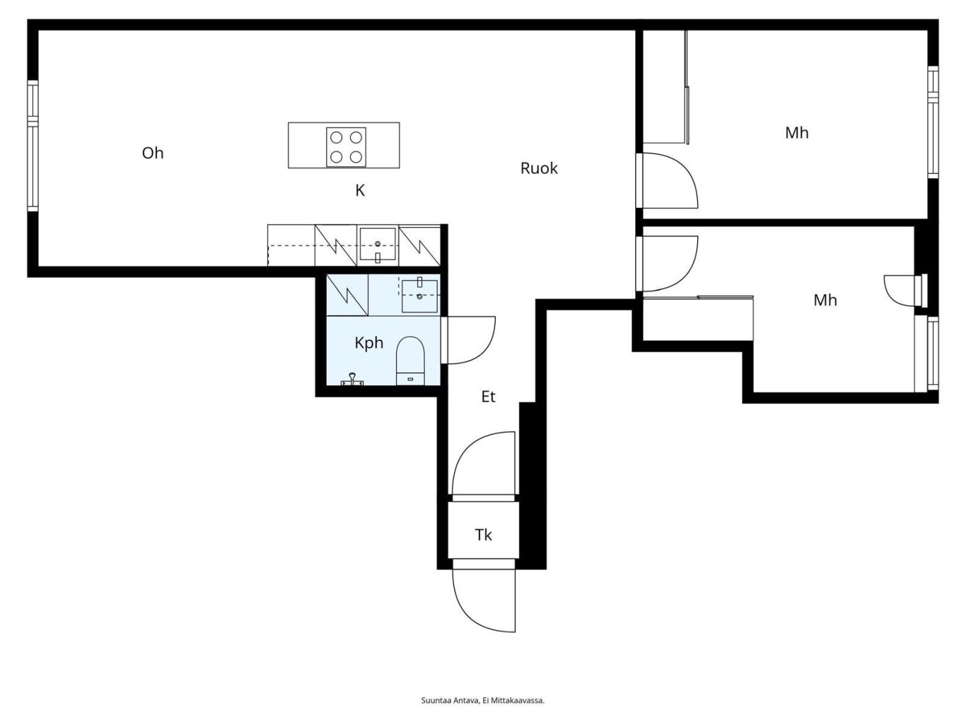
3h,k,kph
-
Kerrostalo
-
1938
-
Ma 30.03.2026
klo 17:30 - 18:00
Esittely
Uniikki löytö Taka-Töölöstä Täydellinen kolmio.
Tämä ajaton ja tyylikäs koti odottaa sinua halutussa Taka-Töölössä, erinomaisella sijainnilla. Kyseessä on neljännen kerroksen hyväkuntoinen huoneisto, joka tarjoaa toimivan yhdistelmän kaupunkiasumisen mukavuutta ja puistojen läheisyyttä. Vaikka ollaan Mannerheimintiellä ei liikenteen äänet juurikaan kuulu asuntoon.
Valoisa ja moderni avokeittiö: Keskipisteenä on saareke. Kauniit puutyötasot ja laadukkaat materiaalit luovat kutsuvan tunnelman ruoanlaittoon ja seurusteluun8.
Tehokkaat tilat: Kodissa on kaksi rauhallista sisäpihalle päin olevaa makuuhuonetta, joissa molemmissa on reilusti kaappitilaa
Siisti kylpyhuone: Kaakeloitu Kph/Wc, jossa on tilaa myös pesukoneelle
Yhteystiedot ja esittelyt
| Yhteystiedot |
|
|---|---|
| Esittelyt | 30.03.2026 17:30 - 18:00 |
Asunnon perustiedot
| Kohdenumero | 21086182 |
|---|---|
| Sijainti |
|
| Tyyppi | Kerrostalo |
| Hallintamuoto | Asunto-osakeyhtiö |
| Omistusmuoto | Oma |
| Huoneistoselitelmä | 3h,k,kph |
| Asuinpinta-ala m² | 59 m² |
| Yhteensä m² | 59 m² |
| Pinta-alan peruste | Yhtiöjärjestyksen mukainen, isännöitsijäntodistuksen mukainen |
| Lisätietoja pinta-alasta | Pinta-ala ei ole tarkistusmitattu. Hinta ei ole pinta-alaperusteinen. Huoneiston pinta-ala on yhtiöjärjestyksen, isännöitsijäntodistuksen ja myyjän ilmoituksen mukaan 59 m². Edellä mainittu pinta-ala saattaa poiketa olennaisestikin huoneiston nykyisten ja rakentamisaikaisten mittaustapojen ja standardien mukaan laskettavasta pinta-alasta. Huoneiston pinta-ala voi siis olla esitteessä mainittua pienempi tai suurempi. Jyvitetty pinta-ala on 49 m². Yhtiöjärjestyksen mukainen huoneistoselitelmä on 2 h, keittiö ja kph. |
| Kerros | 4 |
| Kerroksia | 6 |
| Rakennusvuosi (päättynyt) | 1938 |
| Käyttöönottovuosi | 1938 |
| Vapautuminen | Sopimuksen mukaan |
Hinta ja kustannukset
| Velaton hinta | 367 000 € |
|---|---|
| Myyntihinta | 367 000 € |
| Yhtiövastike | 331,20 € |
| Hoitovastike | 331,20 € |
| Vesimaksu |
|
| Autopaikkamaksu | 70 € / kk |
| Lisätietoja maksuista | Pesutupa 7,50 eur/kk |
Asunnon lisätiedot
| Hissi | Taloyhtiössä on hissi |
|---|---|
| Asuntoon kuuluu |
|
| Yleiskunto | Hyvä |
| Energialuokka | E2018 |
| Lämmitysjärjestelmän kuvaus | Kauko |
Asunnon tilat ja materiaalit
| Asunnon tilat ja materiaalit |
|
|---|---|
| Katto |
|
| Keittiön kuvaus |
|
| Kylpyhuoneen kuvaus |
|
| Olohuoneen kuvaus |
|
| Makuuhuoneiden kuvaus |
|
| Säilytystilojen kuvaus ja lisätiedot | Kellarikomero |
Taloyhtiö
| Taloyhtiön nimi | Asunto Oy Mannerheimintie 67 Bostads Ab |
|---|---|
| Isännöitsijän yhteystiedot | Hansa Isännöinti Oy Mannerheimintie 91, 00270 Helsinki isännöitsijä Harri Hotti 010 202 2900 posti@hansaisannointi.fi |
| Taloyhtiössä muuta | Painovoimainen ilmanvaihto, kaapeli-tv, DNA-talonetti 25M/10M. Kellarivarastot, vintti ja pyykkitupa |
| Energialuokka | E2018 |
| (Taloyhtiön) Rakennukseen tehdyt korjaukset ja remontit | Kunnossapitotarveselvityksen mukaan: 2025 Lämmitysjärjestelmän kartoitus 2017 Yhtiön lukosto uusittu 2017 Lukostot uusittu iLOQ-lukitukseen 2017 Piha-alueiden vihertyöt 2017 Kellarissa suoritetut työt 2016 Julkisivuremontti 2015 Kaukolämpölaitteet uusittu 2014 Kattoturvatuotteet ja lumiesteet 2014 Kph-kuivauspattereiden sulkuventtiilitiivisteet vaihdettu 2014 Kph-pattereiden vialliset venttiilit vaihdettu 2013 Porraskäytävän maalaus 2005 Hissin peruskorjaus 1999 Piha-asfaltoinnin perusparannus 1996 Julkisivusaneeraus 1994 Putkiremontti, vesi- ja viemärijohdot 1991 Kaukolämpölaitteet 1990 Ikkunat 1988 Sähkönousut |
| Tiedossa olevat tulevat korjaukset/remontit | Kunnossapitotarveselvityksen mukaan: 2029 Hissin uusiminen/modernisointi Alustavasti suunnitteilla 2025 Kylpyhuoneiden vedeneristeiden uusimisen suunnittelu ja toteutus Alustavasti suunnitteilla 2025 Lämmitysjärjestelmän kartoitus Alustavasti suunnitteilla |
| Tontin pinta-ala | 814 m² |
| Tontin omistus | Oma |
Palvelut ja liikenneyhteydet
Kuvat
Kiinteistönvälittäjä
Jussi Mansikka
Kiinteistönvälittäjä LKV, LVV, Kaupanvahvistaja