 
      Nuolihaukantie 3B , Espoo
- 
            698 000 €
- 
            125,4m2
- 
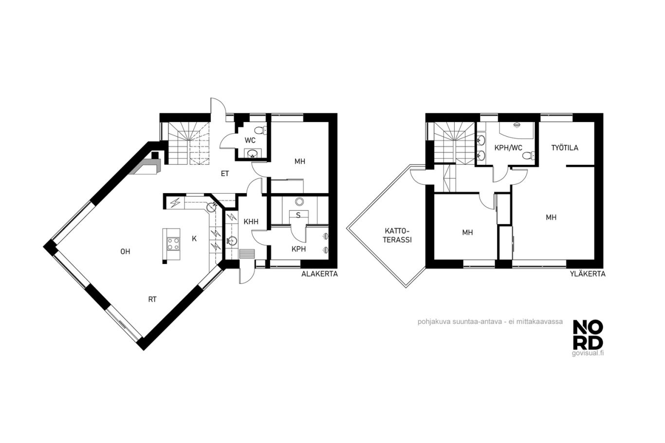
            Oh+rt+k+3mh+työtila+khh+s+kph+kph/wc+et+var+kattoterassi+ak
- 
            Omakotitalo
- 
            2014
Esittely
TASOKKAASTI RAKENNETTU JA ARVOKKAASTI SISUSTETETTU KIVITALO ISOLLA KESÄKEITTIÖKATOKSELLA JA TILAVALLA PIHALLA. SIJAINTI PIENTALOALUEELLA NOPEAN YHTEYDEN PÄÄSSÄ LEPPÄVAARAN PALVELUISTA JA HELSINGISTÄ. LÄMMITYSMUOTONA MAALÄMPÖ. EDULLISET ASUMISKUSTANNUKSET. TALOSTA ON HUOLEHDITTU HYVIN.
Tässä talossa on viiden tähden hotellin tunnelma. Pohjaratkaisu on mitä mainioin ja sisustus on tehty laadukkailla materiaaleilla ja tuotteilla.
Olohuoneessa on tilaa isoillekin kalusteille. Sen keskiössä on tyylikäs paikallaan muurattu takka. Lattia on upeaa erityisen paksua öljyttyä tammilankkua. Olohuone on yhtenäistä avaraa tilaa keittiön ja ruokailutilan kanssa.
Keittiö on spesiaali ja suunniteltu aktiiviseen ruuanlaittoon. Keittiössä on mm. integroitu Miele-kahvinkeitin, tavanomaista leveämpi induktioliesi, erillisuuni ja mikro on nostettu kalusteisiin sopivalle työskentelykorkeudelle ja kylmälaitteena on side-by-side -jääkaappi-pakastin. Ruokailutilaan mahtuu kuuden henkilön ruokailuryhmä. Ruokailutilasta on käynti upealle suurelle terassialueelle, jonka jatkeena on pitkillä kivitasoilla varusteltu lasikattoinen kesäkeittiökatos sekä oleskelualue.
Saunaosaston kylpyhuoneessa on tuplasuihkut sadesuihku- ja tavallisilla suihkupäillä. Löylyhuoneessa on Harvian pallopilarikiuas ja sen takana näyttävä katajalla vuorattu tehosteseinä. Kodinhoitohuoneessa on hyvät tilat arkiaskareille, kurasuihku lapsille tai lemmikeille sekä käynti ulos terassille.
Yläkerrassa on kaksi makuuhuonetta. Päämakuuhuone on kooltaan suuri ja sen jatkeena on työtila. Päämakuuhuoneesta ja työtilasta on mahdollista muodostaa kaksi erillistä makuuhuonetta, jolloin ylläkerrassa olisi kolme makuuhuonetta. Alakerrassa on yksi makuuhuone lisää. Yläkerrassa on lisäksi erityisen kaunis ylellinen kylpyhuone poreammeella, suihkulla, tuplalavuaareilla ja wc-istuimella. Yläkerrasta on käynti aurinkoiselle upealle kattoterassille.
Talon puutarhassa on tasaista nurmikenttää. Siellä mahtuu niin pelaamaan tai leikkimäänkin tai voit loihtia tänne haluamasi hyötypuutarhan. Piha on tilava ja aurinkoinen. Naapurustossa on hienoja taloja.
Tämän talon rakennustyön jälki on huolellista ja eksaktia. Tuotteissa on vaalittu laatua. Esimerkiksi väliovet ovat puuta ja piilosaranoituja. Ylläpito- ja kunnostustoimia on tehty vuosien mittaan tunnollisesti. Talon lämmitysmuotona on maalämpö. Asuminen tässä talossa on edullista.
Tervetuloa tutustumaan tähän eleganttiin taloon hienossa vehreässä ympäristössä.
Mikäli oma asuntonne on vielä myymättä, saatte meiltä veloituksetta arvion sen myyntihinnasta ja -ajasta.
Leena Ollila
Kiinteistönvälittäjä, LKV, DI
Puh. 050 3838 767
leena@nordlkv.fi
Petri Paju
Puh. 044 2461 270
petri.paju@nordlkv.fi
Nord LKV
Yhteystiedot ja esittelyt
| Yhteystiedot | 
 | 
|---|
Asunnon perustiedot
| Kohdenumero | 20640976 | 
|---|---|
| Sijainti | 
 | 
| Tyyppi | Omakotitalo | 
| Omistusmuoto | Oma | 
| Huoneistoselitelmä | Oh+rt+k+3mh+työtila+khh+s+kph+kph/wc+et+var+kattoterassi+ak | 
| Asuinpinta-ala m² | 125.4 m² | 
| Yhteensä m² | 132.9 m² | 
| Lisätietoja pinta-alasta | Rakennuslupakuvan mukaan talon B pinta-alat ovat: P-ALA 250mm 1. kerros 90,2m² 2. kerros 53,0m² Yhteensä 143,1m² HUONEISTOALA 1. kerros 80m² 2. kerros 45,4m² Yhteensä 125,4m² HARKKO 420mm 1. kerros 97,1m² 2. kerros 58,3m² Yhteensä 155,4m² Talousrakennuksessa on nyt myynnissä olevan ja naapurin varastot. Talousrakennuksen pinta-alat ovat: P-ALA 250mm 20,1m² HUONEISTOALA 7,5+7,5m² Rakennus- ja huoneistorekisteriotteen 19.9.2025 mukaan asuinrakennuksen pinta-alat ovat: Huoneistoala 125m² Käytetty rakennusoikeus 143m² Kerrosala 155m² Kokonaisala 155m² Rakennus- ja huoneistorekisteriotteen 19.9.2025 mukaan talousrakennuksen (yhteinen naapurin kanssa) pinta-alat ovat Kerrosala 20,0m² Kokonaisala 49m² Mainitut pinta-alat saattavat poiketa olennaisesti nykyisten mittaustapojen ja standardien mukaan laskettavasta pinta-alasta. Rakennusten todelliset pinta-alat voivat siten olla myynti-ilmoituksessa mainittua pinta-alaa merkittävästi pienempiä tai suurempiä. Kohteen pinta-aloja ei ole tarkastusmitattu. | 
| Kerros | 1 | 
| Kerroksia | 2 | 
| Rakennusvuosi (päättynyt) | 2014 | 
| Käyttöönottovuosi | 2014 | 
| Vapautuminen | 2kk kaupanteosta tai sopimuksen mukaan | 
Hinta ja kustannukset
| Velaton hinta | 698 000 € | 
|---|---|
| Myyntihinta | 698 000 € | 
| Lisätietoja maksuista | Toteutuneita kustannuksia vuodelta 2024: SÄHKÖ Sähkönkulutus 17 899 kWh Sähkönkulutuksen ja siirron hinta yhteensä 1558 euroa/vuosi VESI Vesimaksu sisältäen kulutuksen ja perusmaksun 874 euroa/vuosi JÄTEHUOLTO Jätehuoltomaksu 480 euroa/vuosi sisältäen ison jäteastian vuokran ja sen tyhjennyksen joka toinen viikko KIINTEISTÖVERO Kiinteistövero vuonna 2024 oli 897 euroa SÄHKÖN, VEDEN, JÄTEHUOLLON JA KIINTEISTÖVERON TOTEUTUNUT KUSTANNUS VUONNA 2024 OLI YHTEENSÄ SITEN NOIN 3809 EUROA ELI KESKIMÄÄRIN NOIN 317 EUROA/KK. Kiinteistövero vuonna 2025 on 897,32 euroa. Myyjä vastaa vuoden 2025 kiinteistöverosta. Esitetyt kulutusmäärät perustuvat nykykäytäntöön ja voivat siten olla pienempiä tai suurempia riippuen mm. asukasmäärästä, asumistottumuksista ja palvelun tarjoajasta. | 
Asunnon lisätiedot
| Sauna | 
 | 
|---|---|
| Tulisija | 
 | 
| Tilojen kuvaus | Eteinen ja eteisaula: Vaatekaappi, taso- ja alakaappi, kiinteä lipasto, seinäpeilit, kiinteitä valaisimia, seinät maalattu ja lattia laattaa. Yläkerran aula: Käynti kattoterassille, seinät maalattu ja lattia tammilankkua. | 
| Yleiskunto | Hyvä | 
| Tehdyt korjaukset | 2025 IV-koneen puhallusmoottorit vaihdettu 2023 Lämminvesivaraaja vaihdettu 2021 Maalämpölaitteen kompressori vaihdettu | 
| Lämmitysjärjestelmän kuvaus | Maalämpö, muu | 
Asunnon tilat ja materiaalit
| Asunnon tilat ja materiaalit | 
 | 
|---|---|
| Katto | 
 | 
| Keittiön kuvaus | 
 | 
| Kylpyhuoneen kuvaus | 
 | 
| WC-tilojen kuvaus | 
 | 
| Saunan kuvaus | 
 | 
| Kodinhoitohuoneen kuvaus | 
 | 
| Olohuoneen kuvaus | 
 | 
| Makuuhuoneiden kuvaus | 
 | 
Taloyhtiö
| Kiinteistötunnus/laitostunnus | 49-57-46-8 | 
|---|---|
| Tontin pinta-ala | 1432 m² | 
| Tontin omistus | Oma | 
| Lisätietoja rakennusoikeudesta | Espoon kaupunki puh. 09-81621 | 
| Lisätietoa kaavoituksesta | Espoon kaupunki puh. 09-81621 | 
Palvelut ja liikenneyhteydet
| Palvelut | Lähialueilta löytyy useita ruokakauppoja. Nopea ajo- ja bussiyhteys Leppävaaran Selloon, jossa kattavat kaupalliset ja kunnalliset palvelut sekä suuri urheilukeskittymä, jossa mm. uimahalli, maauimala, monitoimihalli, yleisurheilukenttä, lenkkeily/hiihtoreitit, skeittipuisto ja ulkokuntosali. | 
|---|---|
| Liikenneyhteydet | Nopea ajo- ja bussiyhteys Leppävaaran Selloon. Kehä I:lle ja Turun muuttoritielle lyhyt ajoetäisyys. Erinomaiset pyöräilyreitit. | 
| Päiväkoti | Alueella tai alueen läheisyydessä useita päiväkoteja. | 
| Koulut | Alueella tai alueen läheisyydessä useita kouluja. | 
Kuvat
 
                   
                     
                     
                     
                     
                 
                   
                     
                     
                     
                     
                 
                   
                     
                     
                     
                     
                 
                   
                     
                     
                     
                     
                 
                   
                     
                     
                     
                     
                 
                   
                     
                     
                     
      Petri Paju
Asuntomyyjä