Paloheinäntie 17 b, Helsinki

  • 928 000 €
  • 140m2
  • 4h+avok+kph+s+khh+2xwc+terassi+piha+at
  • Omakotitalo
  • 2010

Esittely

Yhteystiedot ja esittelyt

Yhteystiedot
  • Karolina Mattsson-Nordberg
  • Nord LKV Oy
  • karolina@nordlkv.fi
  • 050 4754 661

Asunnon perustiedot

Kohdenumero20651347
Sijainti
  • Paloheinä
  • Paloheinäntie 17 b
  • 00670
  • Helsinki
TyyppiOmakotitalo
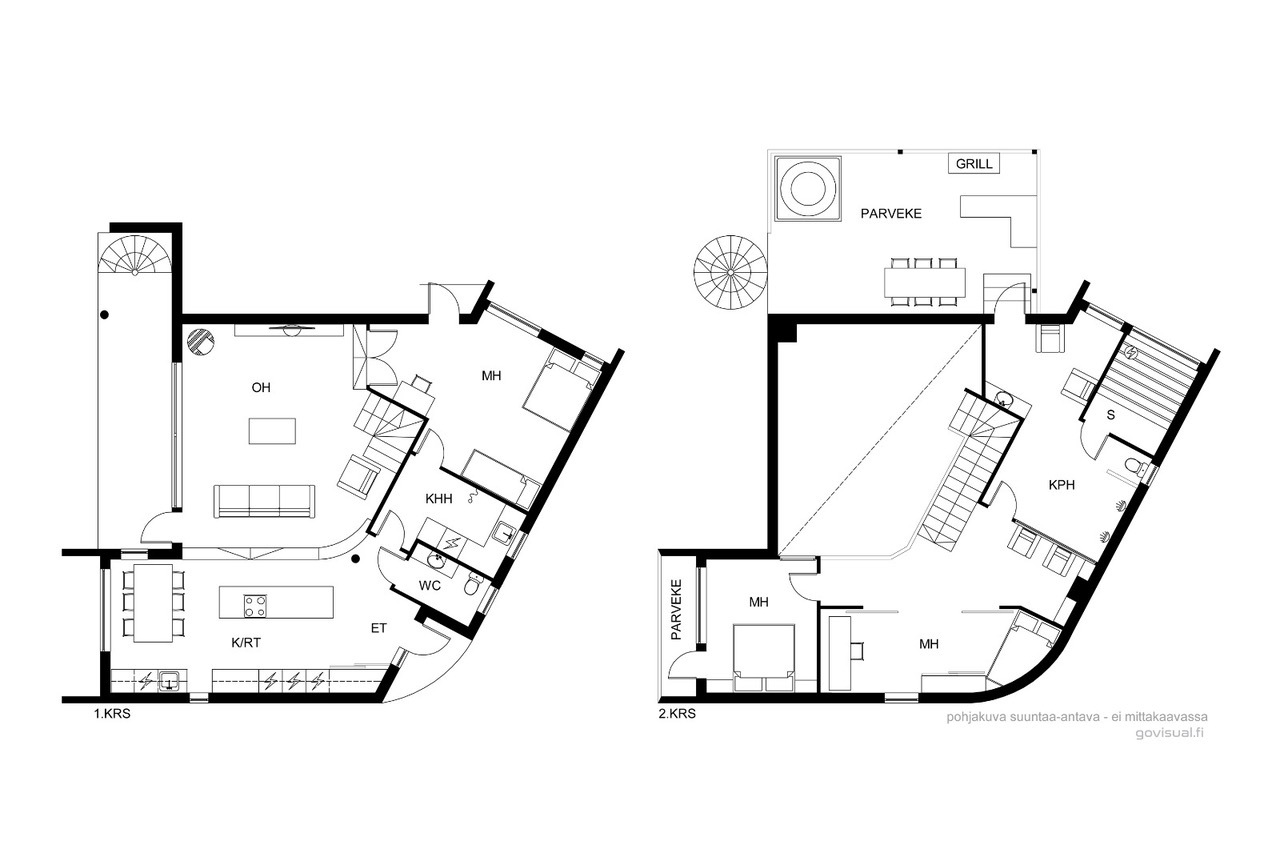
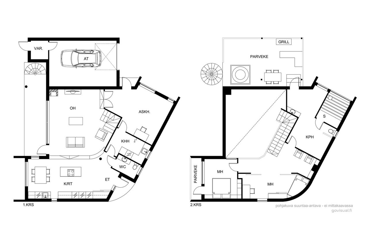
Huoneistoselitelmä4h+avok+kph+s+khh+2xwc+terassi+piha+at
Asuinpinta-ala m²140 m²
Yhteensä m²206 m²
Lisätietoja pinta-alastaRakennusluvan mukaan kerrosala 164 m², ja kokonaisala 206 m². Asemapiirustuksen mukaan kerrosala 164 m², ja kokonaisala 206 m², asunto 2 h+k+s = 115 m² (k1 55 m² + k2 60 m²), kellaritilaa 25 m², autotalli (sis.tekn) 22 m², var 2 m². RAHU-raportin mukaan huoneistoala 115 m², kellarin pinta-ala 30 m², kerrosala 164 m², kokoknaisala 206 m² sekä huoneistoala erittely yht. 140 m² (asuintilaa 115 m² + varastotilaa 25 m²). Asuintilojen pinta-alaan laskettu mukaan huoneistoala 115 m² ja 25 m² kellaritila, joka on asumistapalvelevaa tilaa, jossa työ-ja makuuhuone.
Kerros1
Kerroksia2
Rakennusvuosi (päättynyt)2010
Käyttöönottovuosi2011
Vapautuminen1-2 kk kaupanteosta tai sopimuksen mukaan.

Hinta ja kustannukset

Velaton hinta928 000 €
Myyntihinta928 000 €
Kiinteistövero1 600 €
Vesi ja jätevesi40
Puhtaanapito €/kk15
Lisätietoja maksuistaLämmitys- ja käyttösähkö n. 20 000 kWh/v.

Asunnon lisätiedot

Sauna
  • oma sauna
Tilojen kuvausPääsisäänkäynnin yhteydessä vaatekaapit, seinät maalattu ja lattia laatta. Yläkerran terassi kytkeytyy naapuritaloon, ja tämä on nykyisellä omistajalla ollut yhteiskäytössä. Tilan voi jakaa hyvin omaksi yksityiseksi tilaksi. Yläkerran terassilta on kierreportaat alas. Takapihalla pieni varasto. Autotalli ja tekninen tila.
YleiskuntoHyvä
Lisätietoa kunnostaPinnoissa näkyy asumisesta ja elämisestä johtuvaa kulumaa.
Tehdyt korjauksetNormaaleja omakotitalon huolto-ja kunnossapitotöitä mm. nuohous, ilmanvaihtokanavien suodattimien vaihto ja putsaus. 2025: yläkertaan väliseinien asennnus (lasiset liukuoviseinät) 2022: ilmalämpöpumppu asennettu yläkerran päämakuuhuoneeseen
EnergialuokkaB2007
Lämmitysjärjestelmän kuvausMaalämpö

Asunnon tilat ja materiaalit

Asunnon tilat ja materiaalit
  • Pääasiallinen rakennusmateriaali: betoni
Katto
  • pulpetti
  • maalattu teräs
Keittiön kuvaus
  • Vaalea avokeittiö, jonka yhteyteen mahtuu ikkunan ääreen ruokapöytä. Kaksi jääpakastinkaappia, erillisuuuni, mikroaaltouuni. astianpesukone. Saareekkeessa induktioliesitaso, kaasuliesi, liesituuletin, pesuallas sekä hyvin lasku- ja säilytystilaa. Seinät maalattu ja lattia laatta.
Kylpyhuoneen kuvaus
  • Yläkerrassa tilava saunaosasto. Kaksi suihkua, allastaso (kaksi käsienpesuallasta), peili erillinen wc, pieni jääkaappi, pukuhuone ja käynti terassille. Seinät ja lattia laatta.
WC-tilojen kuvaus
  • Kaksi wc:tä. Alakerrassa peilikaappi, allaskaappi, wc-istuin, bideesuihku. Seinät ja lattia laatta. Yläkerrassa saunaostaton yhteydessä toinen wc.
Saunan kuvaus
  • Uniikki moderni sauna isolla ikkunalla, jossa puukiuas, ja kolme selkänojallista puutuolia. Puukiukaan lämmittäminen tapahtuu vaivattomasti saunan ulkopuolelta, joten sauna on helppo pitää puhtaana puuroskasta. Seinät puupaneeli ja lattia laatta.
Kodinhoitohuoneen kuvaus
  • Alakerrassa kodinhoitohuone, joka toimii myös halutessa toisena kylpyhuoneena. Suihku, kaapistot, käsienpesuallas, pesukoneliitäntä (mahtuu pesutorni ja/tai kuivauskaappi). Seinät ja lattia laatta.
Olohuoneen kuvaus
  • Valoista olohuone, jossa avaraa tilantuntua luo korkea huonekorkeus sekä isot ikkunat. Upeana lisänä tunnelmaa luomassa katosta riippuva Pharosin takka, ja lisäksi sisustukseen sopivat kauniit puuportaat yläkertaan. Tämä tila moneen tapaan sisutettavissa. Olohuoneesta käynti omalle takapihalle, joka osittain aidattu. Seinät maalattu sekä koristekiveä ja lattia parketti. Tilava takapiha, joka suurelta osin aidattu, osittain terassia ja muuten nurmikkoa.
Makuuhuoneiden kuvaus
  • Kolme makuuhuonetta. Yläkerrassa päämakuuhuone, josta käynti parvekkeelle. Tässä makuuhuoneessa kaapistot ja lisäksi ilmalämpöpumppu. Seinät maalattu ja lattia parketti. Yläkerrassa toinen makuuhuone, joka toimii myös hyvin työtilana. Tähän makuuhuoneeseen on teetetty sänky, ja tilassa kaapistot ja lasiset liukuoviseinät. Seinät maalattu ja lattia parketti. Kolmas makuuhuone alakerrassa, jossa kaapisto ja myös oma sisäänkäynti. Tämä tila on ns. kellaritilaa, mutta palvelee hyvin asumista, koska normaali huonekorkeus. Seinät maalattu ja lattia parketti.

Taloyhtiö

Kiinteistötunnus/laitostunnus91-35-55-33
EnergialuokkaB2007
Tontin pinta-ala546 m²
Tontin omistusOma
Lisätietoa kaavoituksestaAOR omakoti- rivi- tai muiden kytkettyjen rakenneusten korttelialue.

Palvelut ja liikenneyhteydet

PalvelutAlepa Paloheinä n. 1 km S-Market Pakila n. 2 km Lidl Pakila n. 2,2 km Kauppakeskus Kaari n. 5 km
Lisätietoa palveluistaPaloheinän ladut n. 2 km Paloheinän golf n. 1,3 km Pirkkolan urheilupuisto n. 3,5 km (mm. uimahalli, jäähalli, palloiluhalli) Paloheinän kirjasto n. 100 m
LiikenneyhteydetBussipysäkki n. 120 m (linjat 63, 66K, 67N)
PäiväkotiPäiväkoteja alueella mm Palke Pakila Päiväkoti, Päiväkoti Pakila, Päiväkoti Havukka, Päiväkoti Valkea, Pakilan ala-aste, Halkosuontie, Viipurin Reaalikoulu lukio, Oulunkylän yhteiskoulu lukio
KoulutKouluja alueella mm. Palke Pakilan ala-aste, Pakilan ala-aste, Elontie, Paloheinän ala-aste,

Kuvat

Kiinteistönvälittäjä

Karolina Mattsson-Nordberg

Kiinteistönvälittäjä, LKV, KiLAT
  • Olen tehnyt myynnin, markkinoinnin ja asiakaspalvelun parissa töitä yli 30 vuotta
  • Viimeiset 5 vuotta olen toiminut erittäin menestyksekkäästi laillistettuna kiinteistönvälittäjänä
  • Toimin kiinteistönvälittäjänä pääkaupunkiseudulla

Pyydä asiakirjat tai sovi esittely

  • This field is hidden when viewing the form
  • This field is hidden when viewing the form
  • Kenttä on validointitarkoituksiin ja tulee jättää koskemattomaksi.