Pohjoinen Lintuvaarantie 43, Espoo
-
528 000 €
-
155m2
-
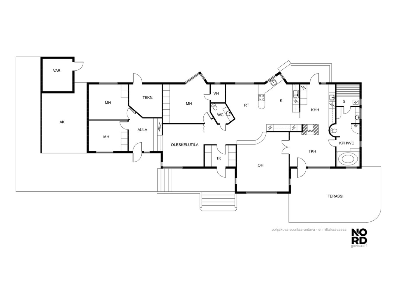
Oh+k+rt+tkh+3mh+ot+aula+vh+khh+s/kph/wc+wc+tekn (yj 3h+k+rt+takkah+s+at)
-
Erillistalo
-
1992
-
Su 29.03.2026
klo 10:15 - 11:15
Esittely
TILAVA, TYYLIKÄS JA HYVÄPOHJAINEN ERILLISTALO ISOLLA PIHALLA. LÄMMITYSJÄRJESTELMÄNÄ MAALÄMPÖ. SIJAINTI VIIHTYISÄLLÄ PIENTALOALUEELLA LINTUVAARASSA. KUNTOTARKASTUS 10/2025, ENERGIATODISTUS 1/2026 JA PINTA-ALAN TARKASTUMITTAUS 2/2026. SALAOJAREMONTTI JUURI VALMISTUNUT.
Tämä kaunis koti on tilava ja ympärivuotisesti valoisa. Talossa on avara isoikkunainen olohuone ja sen jatkeena tunnelmallinen takkahuone. Olohuoneeseen mahtuu isot huonekalut, ja sieltä on kaunis näkymä viherpihalle. Takkahuoneesta on käynti suurelle aurinkoiselle terassille.
Ruokailutila ja keittiö ovat avointa tilaa. Ruokailutilaan mahtuu isokin ruokailuryhmä. Keittiössä on runsaasti työskentely- ja säilytystilaa. Tasot ovat kivitasoa ja tiskialtaitakin on kahdessa kohdassa. Käytännöllisyys on huomioitu talon suunnittelussa onnistuneesti. Keittiön vieressä sijaitsee takka, jossa on tavallinen takkapesä takkahuoneen suuntaan ja leivinuuni kodinhoitohuoneen suuntaan. Kodinhoitohuoneessa on tilaa niin kodinhoitoaskareille kuin säilytykselle. Sieltä on myös käynti ulos.
Asunnon ihastuttava saunaosasto on spa-tyylinen. Kylpyhuoneessa on iso poreamme. Tilassa on myös suihku, lavuaari kaapistoilla ja wc-istuin. Löylyhuoneessa on tilaa koko perheelle.
Talossa on kolme viihtyisää makuuhuonetta. Päämakuuhuoneen yhteydessä on pitkä rivi vaatekomeroita ja vaatehuone. Makuuhuoneiden lähellä sijaitsee erillis-wc. Oleskelutilasta on mahdollisuus toteuttaa perheen yhteinen tv-tila tai etätyöskentelytila ja aulassakin on lisätilaa.
Talon yhteydessä on autokatos ja varasto. Etupihalla on tilaa useammallekin autolle. Puutarha on kaunis ja reilun kokoinen. Siellä on tilaa niin kasvimaalle, hedelmäpuille, peleille kuin leikeillekin. Puutarhassa on myös huvimaja ja maapenkereeseen toteutettu talouskellari.
Lintuvaara on viihtyisää lapsiperheinen suosimaa asuinaluetta, jossa on hyvät koulut ja päiväkodit. Nopea yhteys Leppävaaran kattaviin kaupallisiin ja kunnallisiin palveluihin. Myös Leppävaaran mainio urheilupuisto on lyhyen etäisyyden päässä.
Tervetuloa tutustumaan ja ihastumaan tähän erillistaloon, jossa on tilaa ja mahdollisuuksia onnelliselle asumiselle!
Mikäli oma asuntonne on vielä myymättä, saatte meiltä veloituksetta arvion sen myyntihinnasta ja -ajasta.
Leena Ollila
Kiinteistönvälittäjä, LKV, DI
Puh. 050 3838 767
leena@nordlkv.fi
Petri Paju
Puh. 044 2461 270
petri.paju@nordlkv.fi
Yhteystiedot ja esittelyt
| Yhteystiedot |
|
|---|---|
| Esittelyt | 29.03.2026 10:15 - 11:15 Tervetuloa! Ilmoittaudu ensiesittelyyn ennakkoon Oikotien tai Etuoven kautta. |
Asunnon perustiedot
| Kohdenumero | 21049652 |
|---|---|
| Sijainti |
|
| Tyyppi | Erillistalo |
| Hallintamuoto | Asunto-osakeyhtiö |
| Omistusmuoto | Oma |
| Huoneistoselitelmä | Oh+k+rt+tkh+3mh+ot+aula+vh+khh+s/kph/wc+wc+tekn (yj 3h+k+rt+takkah+s+at) |
| Asuinpinta-ala m² | 155 m² |
| Yhteensä m² | 168 m² |
| Pinta-alan peruste | Tarkistusmitattu |
| Lisätietoja pinta-alasta | Pinta-alan tarkastusmittausraportin 3.2.2026 mukaan Huoneistoala on yhteensä 161 m² Asuintilojen pinta-ala yhteensä 155 m² Muiden tilojen pinta-ala yhteensä 6 m² (tekninen tila) Lisäksi erillinen varasto, joka ei lasketa huoneistoalaan 7 m² Tekninen tila ja erillinen varasto yhteensä 13 m², joka on kirjattu ilmoituksessa muiksi tiloiksi. Yhtiöjärjestyksen 26.9.1990 mukaan asunnon pinta-ala on 140 m². Asuntoon on toteutettu laajennusosa vuonna 2009. Uutta pinta-alaa ei ole päivitetty yhtiöjärjestykseen. Espoon kaupungin Rakennus- ja huoneistorekisteriotteessa 19.1.2026 pinta-alat ovat: Käytetty rakennusoikeus 180 m² Kerrosala 189 m² Kokonaisala 210 m² Huoneistoala 150 m² Rakennus- ja huoneistorekisteriotteessa näkyy lisäksi muutostyön lupatunnus ja valmistumisajankohta: Lupatunnus 49-2005-195 Valmistuminen 2009-10-02 |
| Kerros | 1 |
| Kerroksia | 1 |
| Rakennusvuosi (päättynyt) | 1992 |
| Käyttöönottovuosi | 1992 |
| Vapautuminen | 3kk kaupanteosta tai sopimuksen mukaan |
Hinta ja kustannukset
| Velaton hinta | 528 000 € |
|---|---|
| Myyntihinta | 528 000 € |
| Yhtiövastike | 269,00 € |
| Hoitovastike | 269,00 € |
| Vesimaksu |
|
Asunnon lisätiedot
| Sauna |
|
|---|---|
| Tilojen kuvaus | Takkahuone: Takka, seinät maalattua lasikuitutapettia ja lattia laattaa. Käynti ulkoterassille. Oleskelutila: Seinät maalattu ja lattia parkettia. Aula: Seinät maalattua lasikuitutapettia ja lattia parkettia. Tuulikaappi: Vaatekaappeja, kiinteä seinäpeili, seinät maalattua lasikuitutapettia ja lattia laattaa. |
| Yleiskunto | Hyvä |
| Energialuokka | B2018 |
| Lämmitysjärjestelmän kuvaus | Maalämpö, muu |
| Muut kaupan kannalta merkittävät tiedot | Osakeryhmätunnus: OHA7Q8W9PX63RM21 Talo on valmistunut vuonna 1992, mutta siihen on tehty muutostyönä autotallin muuttaminen kahdeksi lisämakuuhuoneeksi vuonna 2009. Myynnin kohteena olevan talon B huoneistopinta-ala on tarkastusmitattu. Talon A pinta-ala on yhtiöjärjestyksen mukainen eikä sitä ole tarkastusmitattu. |
Asunnon tilat ja materiaalit
| Asunnon tilat ja materiaalit |
|
|---|---|
| Katto |
|
| Keittiön kuvaus |
|
| Kylpyhuoneen kuvaus |
|
| WC-tilojen kuvaus |
|
| Saunan kuvaus |
|
| Kodinhoitohuoneen kuvaus |
|
| Olohuoneen kuvaus |
|
| Makuuhuoneiden kuvaus |
|
| Säilytystilojen kuvaus ja lisätiedot | Autokatoksen yhteydessä on reilun kokoinen kylmä varasto ja asuinrakennuksessa on tilava tekninen tila. |
Taloyhtiö
| Taloyhtiön nimi | Asunto Oy Espoon Lintuvaarantie 101 |
|---|---|
| Isännöitsijän yhteystiedot | Kohde on itseisännöity. Isännöintiä hoitaa: Harri Nummela Pohjoinen Lintuvaarantie 43A, 02660 Espoo harri.nummela@kotikone.fi |
| Energialuokka | B2018 |
| (Taloyhtiön) Rakennukseen tehdyt korjaukset ja remontit | Kumpikin talo A ja B vastaavat omista korjauksistaan ja kustannuksistaan sekä hallinta-alueistaan. Myynnin kohteena olevaan taloon B on tehty seuraavat remontit: 2026 Salaojaremontti, sadevesien ohjaus sekä patolevyjen asennus 2022 Etukuistin muurin pinnoitus 2021 Julkisivun huoltomaalaus 2020 Vesikaton huolto; putsaus ja pinnoite 2019 Liesituuletin uusittu ja keittiön valaistusta ja rakenteita päivitetty 2019 Tuloilmaventtiilien asennus vanhalle puolelle 2019 Sisäpintojen maalaus 2018 Yläpohjan lisäeristys 2018 Terassin uusiminen 2018 Suihkukaapin uusiminen 2018 Sisätilan kiinteiden valaisimien uusiminen 2010 Vessan kalusteiden uusiminen 2009 Maalämmön asennus 2009 Lopputarkastuspöytäkirja 2009 Kylpyhuoneen kalusteiden uusiminen 2008 Ilmastoinnin asennuksen lopputyötarkastus 2005 Lisäosan rakentaminen Kaikki kodinkoneet, paitsi mikroaaltouuni, on uusittu alkuperäisistä Yhtiön yhteisen alueen kunnostukset 2019 Roskakatoksen uusiminen |
| Tontin pinta-ala | 1878 m² |
| Tontin omistus | Oma |
Palvelut ja liikenneyhteydet
| Palvelut | Alueella ruokakauppa. Nopea ajo-, pyöräily- ja kävelyetäisyys Leppävaaran Selloon, jossa kattavat kaupalliset ja kunnalliset palvelut sekä suuri urheilukeskittymä, jossa mm. uimahalli, maauimala, monitoimihalli, yleisurheilukenttä, lenkkeily/hiihtoreitit, skeittipuisto ja ulkokuntosali. Lisäksi lähellä on Uusmäen pallokenttä ja ulkokuntosali sekä Lintulaakson tekonurmikenttä. |
|---|---|
| Liikenneyhteydet | Lyhyt ajo- ja bussiyhteys Kehä I:lle ja Turun moottoritielle. |
| Päiväkoti | Alueella tai alueen läheisyydessä on useita päiväkoteja kuten Lintuvaaran ja Lintulan päiväkodit. Ruotsinkielistä päiväkotipalvelua on Leppävaarassa. |
| Koulut | Alueella tai alueen läheisyydessä useita kouluja kuten Lintuvaaran ja Lintulaakson koulut. |
Kuvat
Leena Ollila
Kiinteistönvälittäjä, LKV, DI