Teollisuuskatu 26, Helsinki
-
557 000 €
-
78m2
-
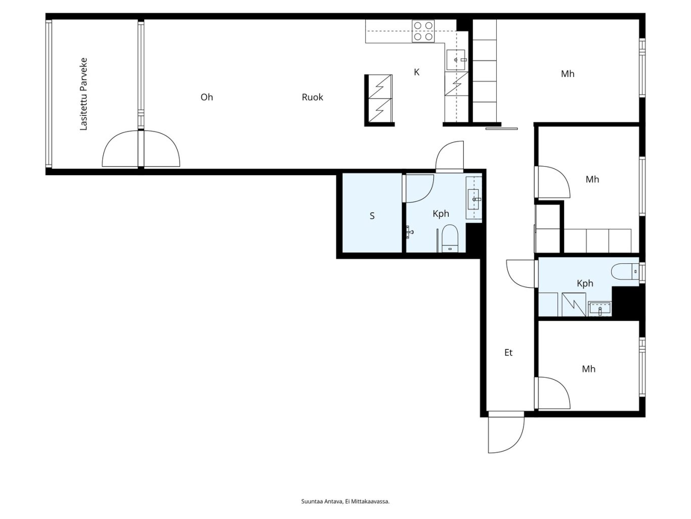
4h,k,kph/s,2xwc,las.p
-
Kerrostalo
-
2018
Esittely
Valoisa ja moderni perheasunto Helsingin Vallilassa!
Etsitkö huoletonta ja laadukasta asumista trendikkäässä Vallilassa? Nyt tarjolla on viidennen kerroksen moderni koti, joka tarjoaa tilaa, valoa ja kattavat palvelut aivan kotiovellasi.
Avara ja valoisa pohjaratkaisu: Huoneistossa on kolme makuuhuonetta, tilava olohuone ja moderni keittiö, joka on varustettu laadukkailla kodinkoneilla. Olohuoneesta on käynti etelään ja länteen suuntautuvalle suurelle lasitetulle parvekkeelle, josta avautuvat avoimet näkymät.
Modernia mukavuutta: Vuonna 2018 valmistunut taloyhtiö takaa huoletonta asumista ilman suuria remonttihuolia vuosiksi eteenpäin. Huoneistossa oma sauna sekä kaksi wc-tilaa sujuvoittamaan arkea.
Erinomaiset yhtiötilat: Taloyhtiöstä löytyy muun muassa kerhotila, saunosasto, pesutupa sekä kuivaushuone.
Mahdollisuus autohallipaikkaan: Asunnon oston yhteydessä on mahdollista hankkia oma autohallipaikka (osake) hintaan 25 000 euroa.
Vallila on tunnettu urbaanista tunnelmastaan ja loistavista kulkuyhteyksistään. Teollisuuskadulla asut lähellä Pasilan ja Kallion palveluita, mutta nautit silti omasta rauhasta.
Yhteystiedot ja esittelyt
| Yhteystiedot |
|
|---|
Asunnon perustiedot
| Kohdenumero | 20265919 |
|---|---|
| Sijainti |
|
| Tyyppi | Kerrostalo |
| Hallintamuoto | Asunto-osakeyhtiö |
| Omistusmuoto | Oma |
| Huoneistoselitelmä | 4h,k,kph/s,2xwc,las.p |
| Asuinpinta-ala m² | 78 m² |
| Yhteensä m² | 78 m² |
| Pinta-alan peruste | Yhtiöjärjestyksen mukainen, isännöitsijäntodistuksen mukainen |
| Lisätietoja pinta-alasta | Pinta-ala ei ole tarkistusmitattu. Hinta ei ole pinta-alaperusteinen. Huoneiston pinta-ala on yhtiöjärjestyksen, isännöitsijäntodistuksen ja myyjän ilmoituksen mukaan 78 m². Yhtiöjärjestyksen mukainen huoneistoselitelmä on 4h+kt+s. |
| Kerros | 5 |
| Kerroksia | 6 |
| Rakennusvuosi (päättynyt) | 2018 |
| Käyttöönottovuosi | 2018 |
| Vapautuminen | Sopimuksen mukaan |
Hinta ja kustannukset
| Velaton hinta | 557 000 € |
|---|---|
| Myyntihinta | 453 202,48 € |
| Velkaosuus | 103 797,52 € |
| Yhtiövastike | 961,32 € |
| Rahoitusvastike | 649,32 € |
| Hoitovastike | 312,00 € |
| Vesimaksu |
|
| Lisätietoja maksuista | Autopaikkavastike 16,00 euroa. Vesimaksu on ennakko, joka tasataan kerran vuodessa huhtikuussa, Vesimittarit luetaan etänä. Autopaikanvastike |
Asunnon lisätiedot
| Sauna |
|
|---|---|
| Parveke | Asunnossa on parveke |
| Parvekkeen kuvaus |
|
| Hissi | Taloyhtiössä on hissi |
| Asuntoon kuuluu |
|
| Yleiskunto | Hyvä |
| Energialuokka | C2013 |
| Lämmitysjärjestelmän kuvaus | Kauko |
Asunnon tilat ja materiaalit
| Asunnon tilat ja materiaalit |
|
|---|---|
| Katto |
|
| Keittiön kuvaus |
|
| Kylpyhuoneen kuvaus |
|
| WC-tilojen kuvaus |
|
| Saunan kuvaus |
|
| Olohuoneen kuvaus |
|
| Makuuhuoneiden kuvaus |
|
| Säilytystilojen kuvaus ja lisätiedot | Irtaimistovarasto |
Taloyhtiö
| Taloyhtiön nimi | Asunto Oy Helsingin Ragnar |
|---|---|
| Isännöitsijän yhteystiedot | Fluxio Isännöinti Oy Tekniikantie 4, 02150 Espoo isännöitsijä Ib Sönnerstad 010 339 0533 asiakaspalvelu@fluxio.fi |
| Taloyhtiössä muuta | LTO, keskusilmanvaihtokone, kaapeli-tv, DNA taloyhtiölaajakaista 10/10M Talo 1: Pyykkitupa, sauna, kerhotila, väestönsuoja, ulkoiluvälinevarasto, irtaimistovarasto, lastenvaunuvarasto, asuinhuoneistot 68 kpl, liiketila 1 kpl, Talo 2: Pyykkitupa, asuinhuoneistot 34 kpl |
| Energialuokka | C2013 |
| Autotallipaikkoja | 7 |
| (Taloyhtiön) Rakennukseen tehdyt korjaukset ja remontit | Kunnossapitotarveselvityksen mukaan: Rappukäytävien 1, K1, K2 huoltomaalaus 2024 Yhden jätevesipumpun uusiminen 2023 Murtorautojen uusiminen ja asennus oviin 2022 Maalämpöselvitys 2022 Murtorautojen asennus oviin 2021 Asennettu kiuaskeskuksen etäohjaus iLOQ-relemoduuli 2021 Kerhotilan ja saunan sähköinen ilmoitustaulu One4all asennettu, tehty tarvittavat lukitusmuutokset 2021 Sähköautojen latausvalmiuden rakentaminen ( autohalli- ja MP-osakkaat) 2021 Rakennuttajan vastuulle kuuluvat vuosikorjaukset 2019-2021 Vuositarkastuksen ennakkotarkastus, Vahanen Rakennusfysiikka Oy 2019 Asuntokauppalain mukainen vuositarkastuskokous 2018 Ulkoalueiden kasvuunlähtötarkastus (AsKL mukainen tarkastus, osa vuositarkastusta) 2018 |
| Tiedossa olevat tulevat korjaukset/remontit | Kunnossapitotarvesuunnitelman mukaan 2025-2029: 2025 Taloautomaation vaihto 2025 Normaalia vuosihuoltoa ja -korjauksia 2026 Normaalia vuosihuoltoa ja -korjauksia 2027 10-vuotisvastuutarkastus ja kuntoarvio 2028 Ilmanvaihtokanavien nuohous ja ilmanvaihdon säätö (10 vuoden välein) 2029 Normaalia vuosihuoltoa ja -korjauksia Talo on valmistunut 2018. Yhtiöllä ei ole normaalin vuosittaisen kunnossapidon lisäksi sellaisia tarpeita yhtiön rakennusten ja kiinteistön kunnossapitoon yhtiökokousta seuraavien viiden vuoden aikana, jotka vaikuttaisivat olennaisesti osakehuoneistojen käyttämiseen, yhtiövastikkeeseen tai muihin osakehuoneiston käytöstä aiheutuviin kustannuksiin. Taloyhtiö vastaanotettu v. 2018. YIT:n 10-vuotisvastuuaika päättyy v. 2028. |
| Tontin pinta-ala | 2825 m² |
| Tontin omistus | Oma |
Palvelut ja liikenneyhteydet
Kuvat
Jussi Mansikka
Kiinteistönvälittäjä LKV, LVV, Kaupanvahvistaja