Värjärinkatu 14 , Karkkila
-
198 000 €
-
190m2
-
6h + k + khh + ph + sauna + 2 x wc
-
Omakotitalo
-
1977
Esittely
Upeasti peruskorjattu tilaihme muuttovalmis koti isommallekin perheelle!
Tervetuloa tutustumaan tähän hurmaavaan, vuonna 1977 rakennettuun ja vuosien varrella täydellisesti peruskorjattuun tiiliverhoiltuun omakotitaloon! Taloon valmistui laajennusosa vuonna 1983.
Tämä koti yhdistää nostalgisen arkkitehtuurin ja nykyaikaiset ratkaisut poikkeuksellisella tavalla kaikki on valmiina uutta perhettä varten.
Reilusti tilaa ja fiksu pohjaratkaisu
Talo tarjoaa runsaasti neliöitä useissa huoneissa tilaratkaisut taipuvat moneen elämäntilanteeseen, olitpa sitten etätyöläinen, harrastaja tai ison perheen arjen pyörittäjä. Jokaiselle löytyy oma nurkkaus ja rauha. Myös oma askartelutila sekä pihavaja luo täydelliset puitteet tee-se-itse tekijöille
Lasitettu terassi ympäri vuoden nautiskeluun
Suojaisa ja valoisa lasitettu terassi toimii loistavasti kesähuoneena tai tunnelmallisena talvikeitaana. Täällä kahvikupin äärellä aika pysähtyy.
Tyylikäs ja kattava peruskorjaus
Talo on kokenut mittavan peruskorjauksen, jossa on huolehdittu niin tekniikasta, pinnoista kuin mukavuuksistakin voit huoletta muuttaa ilman remonttihuolia. Moderni keittiö, tyylikkäät kylpyhuoneet ja hyväkuntoiset pinnat tekevät arjesta sujuvaa ja viihtyisää.
Upeassa puusepän tekemässä saunassa pääset valitsemaan puu- sekä sähkökiukaan väliltä ja vilvoittelemaan takkahuoneeseen jossa käsinmuurattu avotakka.
Pihapiiri ja sijainti
Suojaisa piha tarjoaa mahdollisuuksia niin lasten leikeille, viljelyksille kuin rentoutumiselle. Autotalli ja varastotilat kruunaavat kokonaisuuden. Rauhallinen sijainti, mutta kaikki palvelut ja kulkuyhteydet helposti saavutettavissa.
Tule ja ihastu tämä koti täytyy kokea paikan päällä!
Lisätiedot ja esittelyt:
Matti Nissinen
0505151588
matti.nissinen@nordlkv.fi
Yhteyttä voi ottaa joustavasti myös Whatsapp-viestillä.
Yhteystiedot ja esittelyt
| Yhteystiedot |
|
|---|
Asunnon perustiedot
| Kohdenumero | 21908160 |
|---|---|
| Sijainti |
|
| Tyyppi | Omakotitalo |
| Omistusmuoto | Oma |
| Huoneistoselitelmä | 6h + k + khh + ph + sauna + 2 x wc |
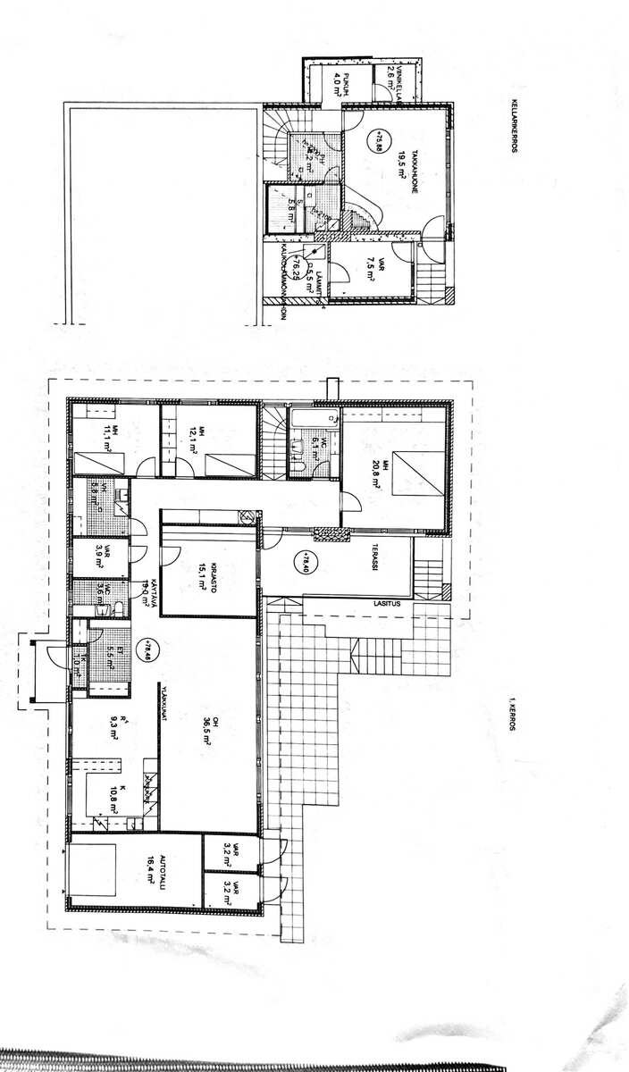
| Asuinpinta-ala m² | 190 m² |
| Yhteensä m² | 232.5 m² |
| Lisätietoja pinta-alasta | Muissa tiloissa mukana kellaritilat, askarteluhuone, autotalli |
| Rakennusvuosi (päättynyt) | 1977 |
| Käyttöönottovuosi | 1977 |
| Vapautuminen | Sopimuksen mukaan |
Hinta ja kustannukset
| Velaton hinta | 198 000 € |
|---|---|
| Myyntihinta | 198 000 € |
| Kiinteistövero | 680,00 € |
| Lämmityskustannukset, muu kuin sähkö (€/kk) | 350,00 € |
Asunnon lisätiedot
| Sauna |
|
|---|---|
| Tulisija |
|
| Asuntoon kuuluu |
|
| Yleiskunto | Hyvä |
| Lisätietoa kunnosta | Tehty laajaa peruskorjausta ja jatkuvaa ylläpitoa |
| Lämmitysjärjestelmän kuvaus | Kauko |
Asunnon tilat ja materiaalit
| Asunnon tilat ja materiaalit |
|
|---|---|
| Katto |
|
| Keittiön kuvaus |
|
| Kylpyhuoneen kuvaus |
|
| WC-tilojen kuvaus |
|
| Saunan kuvaus |
|
| Kodinhoitohuoneen kuvaus |
|
| Olohuoneen kuvaus |
|
| Makuuhuoneiden kuvaus |
|
Taloyhtiö
| Kiinteistötunnus/laitostunnus | 224-004-0009-0018 |
|---|---|
| Tontin pinta-ala | 1032 m² |
| Tontin omistus | Oma |
Palvelut ja liikenneyhteydet
| Palvelut | Ruokakaupat n. 600m, palvelut keskustassa n. 1km |
|---|---|
| Koulut | Lähin ala-aste n. 1km |
Kuvat