Vitträskinranta 1, Kirkkonummi
-
159 000 €
-
49m2
-
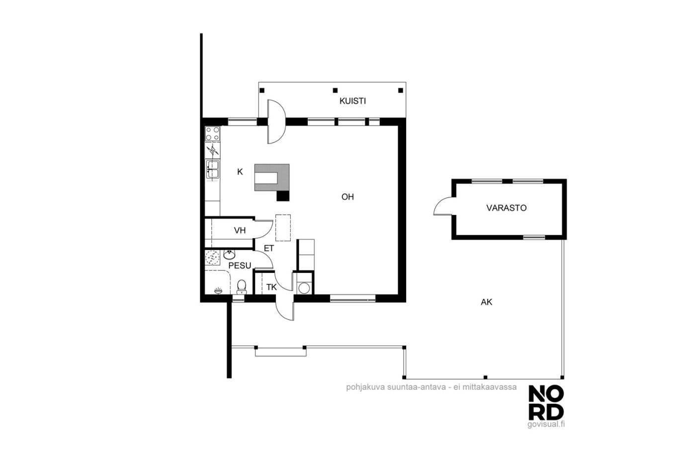
2h+k+iso lämmin varasto + iso vehreä piha (yht.järj. 2h+kk, varasto)
-
Rivitalo
-
1989
-
La 07.02.2026
klo 14:00 - 14:30
Esittely
Koti luonnon helmassa Vitträsk-järven äärellä!
Oitmäen rauhassa, puhdasvetisen Vitträsk-järven läheisyydessä sijaitsee tämä viehättävä 49 m²:n rivitalokoti, jossa luonto on osa arkea. Metsän suojasta pilkahtelee järvi, ja takapihan vehreys sekä upeat näkymät luontoon luovat kodille ainutlaatuisen tunnelman.
Yhdessä tasossa oleva koti hurmaa avaralla olohuoneellaan, jonka yhteydessä on makuutila. Keskellä kotia seisova varaava takkaleivinuuni-yhdistelmä luo lämpöä ja jakaa tilat kauniisti olohuoneen ja keittiön välillä. Keittiössä on paikka pienelle ruokailuryhmälle. Kodin kylpyhuone on remontoitu vuonna 2017.
Tämä koti sopii täydellisesti sinulle, joka arvostat luonnon rauhaa, metsäpolkuja ja järvimaisemia kuitenkaan tinkimättä hyvistä yhteyksistä ja palveluista. Kirkkonummen ja Espoon palvelut sekä juna-asemat ovat helposti saavutettavissa, ja Kehä III:lle ajat vain hetkessä.
Täällä jokainen päivä alkaa luonnonrauhassa ja päättyy järven heijastuksiin.
Tervetuloa ihastumaan esittelyyn!
Yhteydenotot ja esittelyvaraukset:
LKV Mika Grönlund
puh: 050 303 4069
mail: mika@nordlkv.fi
Yhteystiedot ja esittelyt
| Yhteystiedot |
|
|---|
Asunnon perustiedot
| Kohdenumero | 21959966 |
|---|---|
| Sijainti |
|
| Tyyppi | Rivitalo |
| Hallintamuoto | Asunto-osakeyhtiö |
| Omistusmuoto | Oma |
| Huoneistoselitelmä | 2h+k+iso lämmin varasto + iso vehreä piha (yht.järj. 2h+kk, varasto) |
| Asuinpinta-ala m² | 49 m² |
| Yhteensä m² | 49 m² |
| Pinta-alan peruste | Yhtiöjärjestyksen mukainen, isännöitsijäntodistuksen mukainen |
| Kerros | 1 |
| Kerroksia | 1 |
| Rakennusvuosi (päättynyt) | 1989 |
| Käyttöönottovuosi | 1989 |
| Vapautuminen | Sop.mukaan n.2kk |
Hinta ja kustannukset
| Velaton hinta | 159 000 € |
|---|---|
| Myyntihinta | 159 000 € |
| Yhtiövastike | 151,90 € |
| Hoitovastike | 151,90 € |
| Vesimaksu |
|
| Lisätietoja maksuista | Vesimaksu Aavarannan kautta: Perusmaksu 831 euroa / vuosi + kulutus. Nykyisellä omistajalla on vesilasku ollut noin 220 euroa + perusmaksu. Sähkönkulutus on ollut nykyisellä omistajalla noin 2500 kwh/vuosi. Nykyisen omistaja on pääosin lämmittänyt asuntoa puilla. |
Asunnon lisätiedot
| Tulisija |
|
|---|---|
| Yleiskunto | Hyvä |
| Tehdyt korjaukset | Huoneiston painovoimainen ilmanvaihto muutettu kevyeksi koneellisesti Freshin ilmanvaihto menetelmäksi 2021 omalla kustannuksella. (Yhtiön lupa) Ulko-ovet uusittu 2021 omalla kustannuksella yhtiön luvalla. Seinän ja sisäkaton maali pinnat maalattu 2021. Ikkunan puitteet maalattu,ikkunan tiivisteet uusittu 2021 Asunnon räystään aluslaudat,otsalaudat ja autokatoksen sisäkatto maalattu 2021. Vesivaraaja aiheuttanut vesivahingon eteisen tuulikaappiin ja kylpyhuoneeseen 2017. Vesivaraaja uusittu, tuulikaappi ja kylpyhuone remontoitu yhtiön toimesta 2017. |
| Lämmitysjärjestelmän kuvaus | Sähkö, muu |
| Muut kaupan kannalta merkittävät tiedot | Myynnistä täysimääräisesti vastaa välitysliike: Kiinteistönvälitys Mika Grönlund Oy LKV y-tunnus: 3165163-1 virallinen käyntiosoite: Bulevardi 13, 00120 Helsinki Välitysliike toimii itsenäisenä välittäjä yrittäjänä yhteistyösopimuksella Nord LKV Oy:n kanssa. Nord LKV Oy ei vastaa toimeksiannon hoitamisesta. |
Asunnon tilat ja materiaalit
| Asunnon tilat ja materiaalit |
|
|---|---|
| Katto |
|
| Keittiön kuvaus |
|
| Kylpyhuoneen kuvaus |
|
| Olohuoneen kuvaus |
|
| Makuuhuoneiden kuvaus |
|
| Säilytystilojen kuvaus ja lisätiedot | Reilun kokoinen lämmin ikkunallinen varasto, joka toimii hyvin vaikka työhuoneena. |
Taloyhtiö
| Taloyhtiön nimi | Asunto Oy Johtorinne |
|---|---|
| Isännöitsijän yhteystiedot | Pientupa Oy Pitkäkatu 59 G1 65100 Vaasa Puhelinnumero +358306364655 Sähköposti toimisto@pientupa.fi Vastuullinen isännöitsijä Mikko Juusola Sähköposti mikko.juusola@pientupa.fi |
| Autokatospaikkoja | 8 |
| (Taloyhtiön) Rakennukseen tehdyt korjaukset ja remontit | 2021 Katon pesu ja maalaus Aiempaa remonttihistoriaa ei saatavilla. |
| Tiedossa olevat tulevat korjaukset/remontit | 2025 tehdyn kuntoarvion mukaisesti laaditaan pts |
| Tontin pinta-ala | 3000 m² |
| Tontin omistus | Vuokrattu |
| Tontin Vuokranantaja | Tiina Tallberg |
| Tontin vuokra | 780,00 € |
| Taloyhtiön (Tontin) Vuokrasopimus päättyy | 31.12.2038 |
Palvelut ja liikenneyhteydet
Kuvat
Mika Grönlund
Kiinteistönvälittäjä, LKV, LVV, PTM- Asiakaspalautteen keskiarvo 9,5/10, joista kaikki suosittelevat välittäjänä
- Välitystoimiston parhaan kolmen joukossa vuosittain. Vuonna 2020 paras
- Välittäjänä lähes 10 vuotta
- Yrittäjänä ja myyntialalla vuodesta 1999 lähtien
- Useita myyntialan koulutuksia, ammattimyyjätutkinto, auktorisoitu pientalomyyjä PTM, laillistettu kiinteistönvälittäjä LKV, LVV